Projekt domu ARCHON+ Dom w portulankach
		więcej o projekcie Dom w portulankach na archon.pl »
		
			
				
					Dom jednorodzinny				 
				z poddaszem użytkowym		
				garaż, 4 pokoje, 1 kuchnia, 1 łazienka, WC, kotłownia, garderoby, kominek, 				
			 
		    				
				
		
			
			
				
					
						| PARAMETRY TECHNICZNE | 
					
				
				
						
							
									Powierzchnia domu bez kotłowni, garażu
							 | 
							
								85,93 m2
							 | 
						
					
						
							| Powierzchnia kotłowni  | 
							3,95 m2 | 
						
					
						
							| Powierzchnia garażu | 
							20,99 m2 | 
						
					
					
					
						
							| 
								Min. wymiary działki 
								[i]
							 | 
							
								19,04x16,12 m
							 | 
						
					
						
							| * po adaptacji 
									
									[i]
							 | 
							
								18,04x15,52 m
							 | 
						
					
						
							| Kubatura | 
							559,73 m3 | 
						
					
						
							| Powierzchnia zabudowy | 
							85,40 m2 | 
						
					
						
							| 
								Powierzchnia użytkowa 
									[i]
							 | 
							
								77,99 m2
							 | 
						
					
						
							| Wysokość | 
							8,13 m | 
						
					
			
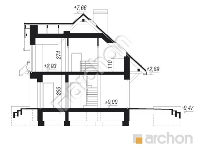
			  TECHNOLOGIA I KONSTRUKCJA:  
			  
			  
ściany zewnetrzne: pustak ceramiczny Porotherm 25 cm, styropian 20 cm, tynk			  
strop: płyta żelbetowa			  
ścianka kolankowa: 110 cm 			  
dach: dwuspadowy, nachylenie 42 st , więźba drewniana, dachówka ceramiczna			  
			
			
			
			
			CENA PROJEKTU: 
			
4 560,00 zł
			zamów na archon.pl
			podyskutuj o projekcie Dom w portulankach