White
White

Projekt domu ARCHON+ Dom w jabłonkach 4 (G)

więcej o projekcie Dom w jabłonkach 4 (G) na archon.pl »
Dom jednorodzinny z poddaszem użytkowym
garaż, 5 pokoi, 1 kuchnia, 2 łazienki, spiżarka, kotłownia, pralnia, garderoby, pomieszczenie gospodarcze, kominek,
PARAMETRY TECHNICZNE
Powierzchnia domu
bez kotłowni, garażu
133,52 m2
Powierzchnia kotłowni 5,04 m2
Powierzchnia garażu 26,54 m2
Min. wymiary działki [i] 23,30x17,50 m
* po adaptacji [i] 22,30x16,50 m
Kubatura 834,34 m3
Powierzchnia zabudowy 135,14 m2
Powierzchnia użytkowa [i] 121,58 m2
Wysokość 8,60 m
TECHNOLOGIA I KONSTRUKCJA:
ściany zewnetrzne: pustak ceramiczny TERMOton 25 cm, styropian 20 cm, tynk
strop: płyta żelbetowa
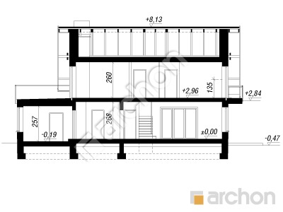
ścianka kolankowa: 135 cm
dach: dwuspadowy, nachylenie 40 st , więźba drewniana, dachówka ceramiczna



CENA PROJEKTU:

5 500,00 zł

zamów na archon.pl
podyskutuj o projekcie Dom w jabłonkach 4 (G)
Dom w jabłonkach 4 (G)
PARTER 100,58 (103,56)
1. Wiatrołap 4,59
2. Hol 6,99
3. Gabinet 12,32
4. Pom. gospodarcze 3,49
5. Garaż 26,54
6. Kotłownia 5,04
7. Łazienka 4,31 (4,91)
8. Salon + Jadalnia 25,31 (27,69)
9. Kuchnia 10,05
10. Spiżarnia 1,94
Dom w jabłonkach 4 (G)
PODDASZE 64,52 (77,08)
1. Hol i schody 10,79 (10,79)
2. Pokój 13,33 (15,81)
3. Pokój 13,51 (15,64)
4. Garderoba 3,82 (5,25)
5. Pralnia 2,69 (2,69)
6. Pokój {z garderobą} 12,99 (17,83)
7. Łazienka 7,39 (9,07)
White
White

Porozmawiaj o projekcie

comments powered by Disqus