White
White

Projekt domu ARCHON+ Dom w skalniakach

więcej o projekcie Dom w skalniakach na archon.pl »
Dom jednorodzinny z poddaszem użytkowym
garaż, 4 pokoje, 1 kuchnia, 2 łazienki, spiżarka, kotłownia, garderoby, kominek,
PARAMETRY TECHNICZNE
Powierzchnia domu
bez kotłowni, garażu
99,22 m2
Powierzchnia kotłowni 3,09 m2
Powierzchnia garażu 19,89 m2
Min. wymiary działki [i] 20,45x16,60 m
* po adaptacji [i] 19,10x16,60 m
Kubatura 644,67 m3
Powierzchnia zabudowy 95,95 m2
Powierzchnia użytkowa [i] 95,31 m2
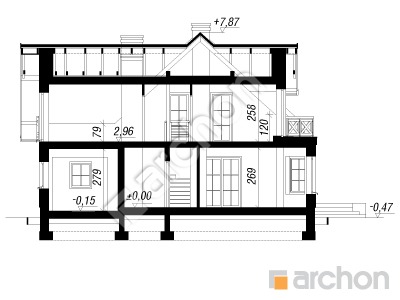
Wysokość 8,34 m
TECHNOLOGIA I KONSTRUKCJA:
ściany zewnetrzne: bloczek z betonu komórkowego H+H 24 cm, styropian 20 cm, tynk
strop: płyta żelbetowa
ścianka kolankowa: 1.20 cm
dach: dwuspadowy, nachylenie 42 st , więźba drewniana, dachówka ceramiczna



CENA PROJEKTU:

4 920,00 zł

zamów na archon.pl
podyskutuj o projekcie Dom w skalniakach
Dom w skalniakach
PARTER 66,09 (68,40)
1. Wiatrołap 3,73
2. Hol 4,25
3. Kuchnia 8,12
4. Spiżarnia 1,66
5. Salon 22,19 (23,90)
6. Łazienka 3,16
7. Kotłownia 3,09 (3,69)
8. Garaż 19,89
Dom w skalniakach
PODDASZE 56,11 (68,45)
1. Schody 4,04 (4,04)
2. Korytarz 4,98 (4,98)
3. Pokój 12,02 (13,45)
4. Pokój 14,07 (15,50)
5. Łazienka 5,66 (7,35)
6. Pokój {z garderobą} 13,09 (17,47)
7. Garderoba 2,25 (5,66)
White
White

Porozmawiaj o projekcie

comments powered by Disqus