White
White

Projekt domu ARCHON+ Dom w kaliach 5 (N)

więcej o projekcie Dom w kaliach 5 (N) na archon.pl »
Dom jednorodzinny parterowy z poddaszem użytkowym
garaż, 6 pokoi, 1 kuchnia, 2 łazienki, spiżarka, kotłownia, pralnia, garderoby, kominek,
PARAMETRY TECHNICZNE
Powierzchnia domu
bez kotłowni, garażu
211,67 m2
Powierzchnia kotłowni 7,37 m2
Powierzchnia garażu 22,20 m2
Min. wymiary działki [i] 26,32x19,62 m
* po adaptacji [i] 25,12x18,62 m
Kubatura 1 167,69 m3
Powierzchnia zabudowy 184,95 m2
Powierzchnia użytkowa [i] 185,04 m2
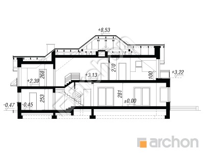
Wysokość 9,03 m
TECHNOLOGIA I KONSTRUKCJA:
ściany zewnetrzne: pustak ceramiczny Porotherm 25 cm, styropian 20 cm, tynk
strop: płyta żelbetowa
ścianka kolankowa: 100 cm
dach: czterospadowy, nachylenie 38 st , więźba drewniana, dachówka ceramiczna



CENA PROJEKTU:

6 590,00 zł

zamów na archon.pl
podyskutuj o projekcie Dom w kaliach 5 (N)
Dom w kaliach 5 (N)
PARTER 139,46 (141,78)
1. Wiatrołap 6,96
2. Hol 3,77
3. Łazienka 6,92
4. Pralnia 9,08 (11,40)
5. Garaż 22,20
6. Kotłownia 7,37
7. Gabinet 16,68
8. Salon + Jadalnia 50,49
9. Kuchnia 13,89
10. Spiżarnia 2,10
Dom w kaliach 5 (N)
PODDASZE 101,78 (141,05)
1. Schody 5,58 (5,58)
2. Pokój {z garderobą} 13,48 (20,80)
3. Garderoba 2,81 (9,00)
4. Hol 8,66 (8,66)
5. Pokój {z garderobą} 16,43 (17,98)
6. Garderoba 6,12 (11,88)
7. Garderoba 3,12 (3,12)
8. Pokój {z garderobą} 19,40 (25,14)
9. Pokój {z garderobą} 15,86 (17,86)
10. Garderoba 3,40 (7,81)
11. Łazienka 6,92 (13,22)
White
White

Porozmawiaj o projekcie

comments powered by Disqus