White
White

Projekt domu ARCHON+ Dom w zdrojówkach (P)

więcej o projekcie Dom w zdrojówkach (P) na archon.pl »
Dom jednorodzinny z poddaszem użytkowym
garaż, piwnica, 5 pokoi, 1 kuchnia, 2 łazienki, spiżarka, kotłownia, pralnia, garderoby, pomieszczenie gospodarcze, kominek,
PARAMETRY TECHNICZNE
Powierzchnia domu
bez garażu, piwnic
126,72 m2
Powierzchnia garażu 20,17 m2
Powierzchnia piwnic 76,64 m2
Min. wymiary działki [i] 21,10x17,20 m
* po adaptacji [i] 20,90x17,00 m
Kubatura 1 020,89 m3
Powierzchnia zabudowy 118,04 m2
Powierzchnia użytkowa [i] 115,81 m2
Wysokość 8,31 m
TECHNOLOGIA I KONSTRUKCJA:
ściany zewnetrzne: bloczek z betonu komórkowego H+H 24 cm, styropian 20 cm, tynk
strop: płyta żelbetowa
ścianka kolankowa: 100 cm
dach: dwuspadowy, nachylenie 40 st , więźba drewniana, dachówka ceramiczna



CENA PROJEKTU:

5 850,00 zł

zamów na archon.pl
podyskutuj o projekcie Dom w zdrojówkach (P)
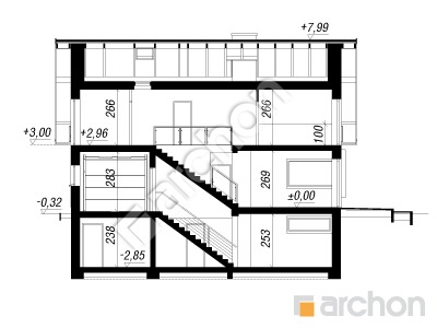
Dom w zdrojówkach (P)
PIWNICA 76,64 (79,14)
1. Pom. gospodarcze 13,48
2. Spiżarnia 7,37
3. Korytarz 5,83 (8,33)
4. Pom. gospodarcze 25,79
5. Pralnia 12,00
6. Kotłownia 12,17
Dom w zdrojówkach (P)
PARTER 78,60
1. Wiatrołap 6,21
2. Hol 1,78
3. Łazienka 3,27
4. Salon + Jadalnia 25,92
5. Kuchnia 12,44
6. Spiżarnia 5,26
7. Schody 3,55
8. Garaż 20,17
Dom w zdrojówkach (P)
PODDASZE 68,29 (90,03)
1. Schody 4,30
2. Korytarz 9,08
3. Garderoba 3,49 (6,72)
4. Pokój {z garderobą} 13,52 (16,75)
5. Łazienka 6,90 (9,95)
6. Garderoba 2,16 (3,44)
7. Pokój {z garderobą} 11,18 (14,42)
8. Pokój 9,67 (12,90)
9. Pokój 7,99 (12,47)
White
White

Porozmawiaj o projekcie

comments powered by Disqus