White
White

Projekt domu ARCHON+ Dom w laurowiśniach 2 (G)

więcej o projekcie Dom w laurowiśniach 2 (G) na archon.pl »
Dom jednorodzinny z poddaszem użytkowym
garaż, 6 pokoi, 1 kuchnia, 2 łazienki, kotłownia, pralnia, garderoby, kominek,
PARAMETRY TECHNICZNE
Powierzchnia domu
bez kotłowni, garażu
147,29 m2
Powierzchnia kotłowni 3,05 m2
Powierzchnia garażu 18,41 m2
Min. wymiary działki [i] 16,50x22,60 m
* po adaptacji [i] 15,50x22,60 m
Kubatura 837,93 m3
Powierzchnia zabudowy 124,56 m2
Powierzchnia użytkowa [i] 134,94 m2
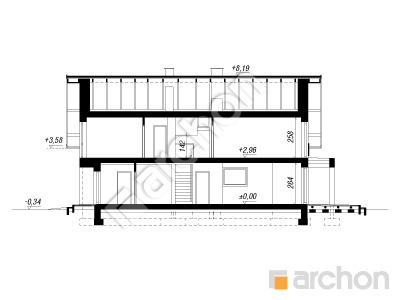
Wysokość 8,53 m
TECHNOLOGIA I KONSTRUKCJA:
ściany zewnetrzne: pustak ceramiczny Porotherm 25 cm, styropian 20 cm, tynk
strop: płyta żelbetowa
ścianka kolankowa: 142 cm
dach: dwuspadowy, nachylenie 40 st , więźba drewniana, dachówka ceramiczna



CENA PROJEKTU:

5 500,00 zł

zamów na archon.pl
podyskutuj o projekcie Dom w laurowiśniach 2 (G)
Dom w laurowiśniach 2 (G)
PARTER 84,02 (87,93)
1. Wiatrołap 3,61
2. Hol 6,18
3. Garaż 18,41 (21,59)
4. Kotłownia 3,05 (3,78)
5. Kuchnia 11,94
6. Salon 28,42
7. Łazienka 3,78
8. Pokój 8,63
Dom w laurowiśniach 2 (G)
PODDASZE 84,73 (95,74)
1. Schody 6,00
2. Hol 8,90
3. Garderoba 3,82 (4,80)
4. Pokój {z garderobą} 12,49 (14,05)
5. Pokój 15,24 (16,79)
6. Łazienka 6,79 (8,61)
7. Pralnia 4,77 (5,81)
8. Pokój 11,48 (13,10)
9. Pokój 11,48 (13,10)
10. Garderoba 3,76 (4,58)
White
White

Porozmawiaj o projekcie

comments powered by Disqus