White
White

Projekt domu ARCHON+ Dom w kameliach (G2N)

więcej o projekcie Dom w kameliach (G2N) na archon.pl »
Dom jednorodzinny parterowy z poddaszem użytkowym
garaż, strych, 5 pokoi, 1 kuchnia, 2 łazienki, spiżarka, kotłownia, pralnia, garderoby, pomieszczenie gospodarcze, kominek,
PARAMETRY TECHNICZNE
Powierzchnia domu
bez kotłowni, garażu, strychu
160,74 m2
Powierzchnia kotłowni 6,09 m2
Powierzchnia garażu 35,15 m2
Powierzchnia strychu 11,77 m2
Min. wymiary działki [i] 22,56x22,96 m
* po adaptacji [i] 21,56x22,96 m
Kubatura 1 015,92 m3
Powierzchnia zabudowy 167,55 m2
Powierzchnia użytkowa [i] 143,71 m2
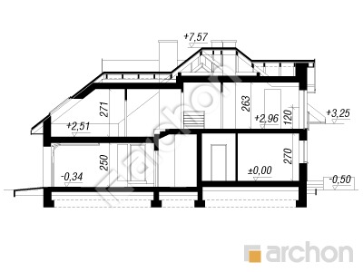
Wysokość 8,07 m
TECHNOLOGIA I KONSTRUKCJA:
ściany zewnetrzne: bloczek z betonu komórkowego YTONG 24 cm, styropian 20 cm, tynk
strop: płyta żelbetowa
ścianka kolankowa: 120 cm
dach: czterospadowy, nachylenie 38 st , więźba drewniana, dachówka ceramiczna



CENA PROJEKTU:

5 850,00 zł

zamów na archon.pl
podyskutuj o projekcie Dom w kameliach (G2N)
Dom w kameliach (G2N)
PARTER 125,22 (126,08)
1. Wiatrołap 4,59
2. Hol 9,28
3. Salon 31,92
4. Kuchnia 13,05
5. Spiżarnia 1,16 (2,02)
6. Przedpokój 2,56
7. Pokój 12,87
8. Łazienka 4,15
9. Kotłownia 6,09
10. Pom. gospodarcze 4,40
11. Garaż 35,15
Dom w kameliach (G2N)
PODDASZE 88,53 (127,41)
1. Hol i schody 10,75 (10,75)
2. Pokój {z garderobą} 13,47 (16,37)
3. Garderoba 2,29 (4,73)
4. Pokój 20,27 (25,50)
5. Pokój {z garderobą} 14,95 (19,17)
6. Garderoba 2,99 (5,73)
7. Łazienka 5,85 (8,50)
8. Pralnia 6,19 (7,59)
9. Strych 11,77 (29,07)
White
White

Porozmawiaj o projekcie

comments powered by Disqus