White
White

Projekt domu ARCHON+ Dom w tymianku 8

więcej o projekcie Dom w tymianku 8 na archon.pl »
Dom jednorodzinny parterowy z poddaszem użytkowym
garaż, 5 pokoi, 1 kuchnia, 2 łazienki, kotłownia, pralnia, garderoby, kominek,
PARAMETRY TECHNICZNE
Powierzchnia domu
bez kotłowni, garażu
139,78 m2
Powierzchnia kotłowni 4,04 m2
Powierzchnia garażu 20,56 m2
Min. wymiary działki [i] 19,50x20,25 m
* po adaptacji [i] 17,50x20,25 m
Kubatura 815,85 m3
Powierzchnia zabudowy 124,34 m2
Powierzchnia użytkowa [i] 130,57 m2
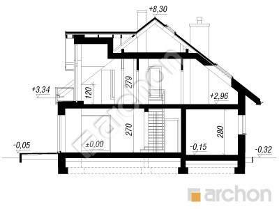
Wysokość 8,62 m
TECHNOLOGIA I KONSTRUKCJA:
ściany zewnetrzne: pustak ceramiczny Porotherm 25 cm, styropian 20 cm, tynk
strop: płyta żelbetowa
ścianka kolankowa: 120 cm
dach: dwuspadowy, nachylenie 38 st , więźba drewniana, dachówka ceramiczna



CENA PROJEKTU:

5 500,00 zł

zamów na archon.pl
podyskutuj o projekcie Dom w tymianku 8
Dom w tymianku 8
PARTER 94,31 (96,89)
1. Wiatrołap 8,05
2. Hol 6,63 (9,21)
3. Kuchnia 10,15
4. Salon + Jadalnia 30,09
5. Schody 3,61
6. Łazienka 3,53
7. Gabinet 7,65
8. Kotłownia 4,04
9. Garaż 20,56
Dom w tymianku 8
PODDASZE 70,07 (85,18)
1. Korytarz 10,94 (10,94)
2. Łazienka 8,41 (11,50)
3. Pralnia 3,89 (6,53)
4. Pokój 11,87 (16,49)
5. Pokój 11,85 (14,23)
6. Pokój {z garderobą} 17,79 (18,87)
7. Garderoba 5,32 (6,62)
White
White

Porozmawiaj o projekcie

comments powered by Disqus