White
White

Projekt domu ARCHON+ Dom w tamaryszkach 4 (G2)

więcej o projekcie Dom w tamaryszkach 4 (G2) na archon.pl »
Dom jednorodzinny parterowy z poddaszem użytkowym
garaż, 6 pokoi, 1 kuchnia, 3 łazienki, spiżarka, kotłownia, pralnia, garderoby, kominek,
PARAMETRY TECHNICZNE
Powierzchnia domu
bez kotłowni, garażu
144,84 m2
Powierzchnia kotłowni 12,10 m2
Powierzchnia garażu 34,76 m2
Min. wymiary działki [i] 23,72x19,42 m
* po adaptacji [i] 22,72x18,72 m
Kubatura 948,88 m3
Powierzchnia zabudowy 143,19 m2
Powierzchnia użytkowa [i] 134,43 m2
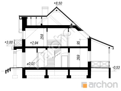
Wysokość 9,03 m
TECHNOLOGIA I KONSTRUKCJA:
ściany zewnetrzne: pustak ceramiczny Porotherm 25 cm, styropian 20 cm, tynk
strop: płyta żelbetowa
ścianka kolankowa: 95 cm
dach: dwuspadowy, nachylenie 42 st , więźba drewniana, dachówka ceramiczna



CENA PROJEKTU:

5 850,00 zł

zamów na archon.pl
podyskutuj o projekcie Dom w tamaryszkach 4 (G2)
Dom w tamaryszkach 4 (G2)
PARTER 106,51 (107,97)
1. Wiatrołap 2,71
2. Hol 9,06
3. Łazienka 4,19
4. Spiżarnia 1,37
5. Kuchnia 7,56
6. Salon + Jadalnia 25,80
7. Pokój 8,17
8. Schowek 0,79 (2,25)
9. Kotłownia 12,10
10. Garaż 34,76
Dom w tamaryszkach 4 (G2)
PODDASZE 85,19 (105,56)
1. Schody 4,84 (4,84)
2. Korytarz 3,68 (3,68)
3. Pokój 6,89 (10,61)
4. Pokój 14,59 (15,36)
5. Pokój 15,06 (18,06)
6. Łazienka 7,34 (8,46)
7. Przedpokój 2,14 (2,97)
8. Pralnia 3,61 (5,01)
9. Pokój {z łazienką i garderobą} 18,15 (18,15)
10. Łazienka 4,25 (6,08)
11. Garderoba 2,33 (6,18)
12. Garderoba 2,31 (6,16)
White
White

Porozmawiaj o projekcie

comments powered by Disqus