White
White

Projekt domu ARCHON+ Dom w hurmach 2

więcej o projekcie Dom w hurmach 2 na archon.pl »
Dom jednorodzinny parterowy
garaż, 4 pokoje, 1 kuchnia, 2 łazienki, spiżarka, WC, kotłownia, pralnia, garderoby, pomieszczenie gospodarcze, kominek,
PARAMETRY TECHNICZNE
Powierzchnia domu
bez kotłowni, garażu
153,14 m2
Powierzchnia kotłowni 2,58 m2
Powierzchnia garażu 41,24 m2
Min. wymiary działki [i] 34,35x19,25 m
Kubatura 1 079,32 m3
Powierzchnia zabudowy 268,59 m2
Powierzchnia użytkowa [i] 134,05 m2
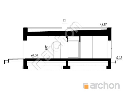
Wysokość 4,29 m
TECHNOLOGIA I KONSTRUKCJA:
ściany zewnetrzne: bloczek z betonu komórkowego H+H 24 cm, styropian 20 cm, tynk
strop: płyta żelbetowa
dach: płaski, nachylenie 0 st , papa termozgrzewalna



CENA PROJEKTU:

5 950,00 zł

zamów na archon.pl
podyskutuj o projekcie Dom w hurmach 2
Dom w hurmach 2
PARTER 196,96
1. Wiatrołap 6,00
2. Hol 5,53
3. Salon + Jadalnia 43,73
4. Kuchnia 10,02
5. Toaleta 1,96
6. Spiżarnia 3,67
7. Garderoba 1,98
8. Korytarz 10,67
9. Pralnia 4,51
10. Łazienka 6,51
11. Pom. gospodarcze 2,79
12. Kotłownia 2,58
13. Garaż 41,24
14. Pokój 14,57
15. Pokój 14,53
16. Pokój {z łazienką i garderobą} 16,58
17. Łazienka 3,95
18. Garderoba 6,14
White
White

Porozmawiaj o projekcie

comments powered by Disqus