White
White

Projekt domu ARCHON+ Dom w wilcach

więcej o projekcie Dom w wilcach na archon.pl »
Dom dwurodzinny (jednorodzinny dwupokoleniowy) z poddaszem użytkowym
7 pokoi, 2 kuchnie, 3 łazienki, kotłownia, pralnia, garderoby, kominek,
PARAMETRY TECHNICZNE
Powierzchnia domu
bez kotłowni
175,33 m2
Powierzchnia kotłowni 7,80 m2
Min. wymiary działki [i] 22,66x18,06 m
Kubatura 957,34 m3
Powierzchnia zabudowy 141,18 m2
Powierzchnia użytkowa [i] 160,35 m2
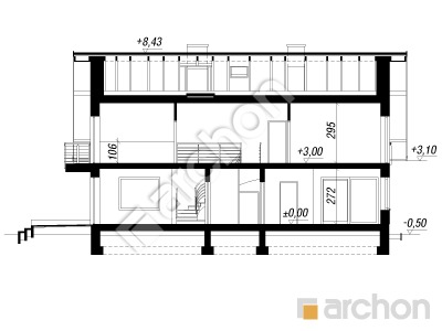
Wysokość 8,93 m
TECHNOLOGIA I KONSTRUKCJA:
ściany zewnetrzne: bloczek z betonu komórkowego YTONG 24 cm, styropian 20 cm, tynk
strop: płyta żelbetowa
ścianka kolankowa: 106 cm
dach: dwuspadowy, nachylenie 42 st , więźba drewniana, dachówka ceramiczna
W domu zaprojektowano 2 mieszkania: większe o powierzchni 122,27m2 zlokalizowane jest częściowo na parterze (kuchnia, salon i łazienka) oraz zajmuje całe poddasze (4 pokoje, łazienka, pralnia i garderoby); mniejsze o powierzchni 42,77m2 znajduje się na parterze, gdzie zaprojektowano salon z kuchnią, łazienkę i sypialnię z garderobą.



CENA PROJEKTU:

5 060,00 zł

zamów na archon.pl
podyskutuj o projekcie Dom w wilcach
Dom w wilcach
PARTER 99,22 (99,75)
1. Wiatrołap 7,97
2. Schowek 2,32 (2,85)
3. Kotłownia 7,80
4. Hol 1,66
5. Łazienka 3,28
6. Kuchnia 6,99
7. Salon 26,43
8. Przedpokój 3,08
9. Łazienka 3,54
10. Kuchnia 5,36
11. Salon 16,79
12. Pokój {z garderobą} 10,77
13. Garderoba 3,23
Dom w wilcach
PODDASZE 83,91 (110,18)
1. Schody 4,83 (4,83)
2. Hol 7,69 (7,69)
3. Łazienka 5,78 (9,89)
4. Pralnia 3,32 (5,38)
5. Garderoba 3,73 (5,69)
6. Pokój {z garderobą} 18,41 (21,32)
7. Garderoba 2,38 (3,47)
8. Pokój 9,98 (13,11)
9. Pokój 15,56 (19,09)
10. Pokój 12,23 (19,71)
White
White

Porozmawiaj o projekcie

comments powered by Disqus