White
White

Projekt domu ARCHON+ Dom w aurorach 5

więcej o projekcie Dom w aurorach 5 na archon.pl »
Dom jednorodzinny z poddaszem użytkowym
6 pokoi, 1 kuchnia, 2 łazienki, spiżarka, kotłownia, pralnia, garderoby, pomieszczenie gospodarcze, kominek,
PARAMETRY TECHNICZNE
Powierzchnia domu
bez kotłowni
159,16 m2
Powierzchnia kotłowni 6,89 m2
Min. wymiary działki [i] 21,30x18,70 m
* po adaptacji [i] 21,30x16,40 m
Kubatura 826,16 m3
Powierzchnia zabudowy 124,27 m2
Powierzchnia użytkowa [i] 145,81 m2
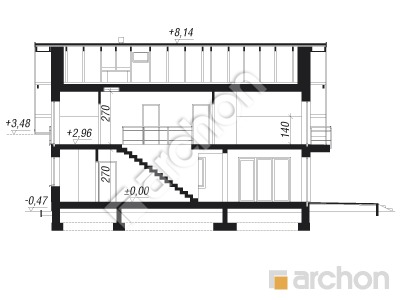
Wysokość 8,61 m
TECHNOLOGIA I KONSTRUKCJA:
ściany zewnetrzne: pustak ceramiczny Porotherm 25 cm, styropian 20 cm, tynk
strop: płyta żelbetowa
ścianka kolankowa: 140 cm
dach: dwuspadowy, nachylenie 40 st , więźba drewniana, dachówka ceramiczna



CENA PROJEKTU:

5 500,00 zł

zamów na archon.pl
podyskutuj o projekcie Dom w aurorach 5
Dom w aurorach 5
PARTER 91,76 (94,07)
1. Wiatrołap 5,53
2. Hol 10,43 (12,74)
3. Spiżarnia 2,39
4. Kuchnia 15,27
5. Salon + Jadalnia 35,53
6. Pokój 10,39
7. Łazienka 3,38
8. Pom. gospodarcze 1,95
9. Kotłownia 6,89
Dom w aurorach 5
PODDASZE 74,29 (94,56)
1. Hol i schody 11,96
2. Pokój 13,06 (14,59)
3. Pokój 15,29 (17,87)
4. Garderoba 5,49 (6,58)
5. Pokój 10,72 (15,94)
6. Łazienka 8,34 (9,88)
7. Pralnia 3,52 (6,80)
8. Pokój 5,91 (10,94)
White
White

Porozmawiaj o projekcie

comments powered by Disqus