White
White

Projekt domu ARCHON+ Dom w budlejach (B)

więcej o projekcie Dom w budlejach (B) na archon.pl »
Dom do zabudowy bliźniaczej z poddaszem użytkowym
garaż, 5 pokoi, 1 kuchnia, 2 łazienki, kotłownia, garderoby, pomieszczenie gospodarcze, kominek,
PARAMETRY TECHNICZNE
Powierzchnia domu
bez kotłowni, garażu
129,60 m2
Powierzchnia kotłowni 8,51 m2
Powierzchnia garażu 17,91 m2
Min. wymiary działki [i] 14,77x18,60 m
Kubatura 714,80 m3
Powierzchnia zabudowy 111,22 m2
Powierzchnia użytkowa [i] 117,23 m2
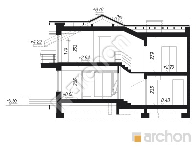
Wysokość 7,32 m
TECHNOLOGIA I KONSTRUKCJA:
ściany zewnetrzne: cegła wapienno piaskowa SILKA 24 cm, styropian 20 cm, tynk
strop: płyta żelbetowa
ścianka kolankowa: 178 cm
dach: dwuspadowy, nachylenie 25 st , więźba drewniana, blacha



CENA PROJEKTU:

5 420,00 zł

zamów na archon.pl
podyskutuj o projekcie Dom w budlejach (B)
Dom w budlejach (B)
PARTER 88,39 (89,84)
1. Wiatrołap 2,82
2. Hol 2,33
3. Kuchnia 8,87
4. Salon + Jadalnia 33,32
5. Schody 5,26
6. Pom. gospodarcze 2,83 (4,28)
7. Łazienka 6,54
8. Kotłownia 8,51
9. Garaż 17,91
Dom w budlejach (B)
PODDASZE 67,63 (81,73)
1. Hol 4,53 (4,53)
2. Garderoba 3,75 (5,27)
3. Pokój {z garderobą} 14,74 (16,00)
4. Pokój 10,52 (11,25)
5. Pokój 9,38 (10,43)
6. Łazienka 6,03 (7,51)
7. Garderoba 5,79 (9,82)
8. Pokój {z garderobą} 12,89 (16,92)
White
White

Porozmawiaj o projekcie

comments powered by Disqus