White
White

Projekt domu ARCHON+ Dom w perłówce (BN)

więcej o projekcie Dom w perłówce (BN) na archon.pl »
Dom do zabudowy bliźniaczej z poddaszem użytkowym
garaż, 4 pokoje, 1 kuchnia, 2 łazienki, kotłownia, garderoby, pomieszczenie gospodarcze, kominek,
PARAMETRY TECHNICZNE
Powierzchnia domu
bez kotłowni, garażu
92,78 m2
Powierzchnia kotłowni 5,44 m2
Powierzchnia garażu 17,91 m2
Min. wymiary działki [i] 15,88x15,52 m
* po adaptacji [i] 14,88x15,52 m
Kubatura 568,65 m3
Powierzchnia zabudowy 87,34 m2
Powierzchnia użytkowa [i] 88,74 m2
Wysokość 8,09 m
TECHNOLOGIA I KONSTRUKCJA:
ściany zewnetrzne: pustak ceramiczny Porotherm 25 cm, styropian 20 cm, tynk
strop: płyta żelbetowa
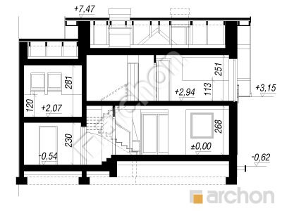
ścianka kolankowa: 113 cm
dach: dwuspadowy, nachylenie 40 st , więźba drewniana, dachówka ceramiczna



CENA PROJEKTU:

4 790,00 zł

zamów na archon.pl
podyskutuj o projekcie Dom w perłówce (BN)
Dom w perłówce (BN)
PARTER 62,93 (63,30)
1. Wiatrołap 2,35
2. Hol 3,91
3. Łazienka 3,52
4. Garderoba 2,17 (2,54)
5. Garaż 17,91
6. Kotłownia 5,44
7. Salon + Jadalnia 19,16
8. Kuchnia 8,47
Dom w perłówce (BN)
PODDASZE 53,20 (65,34)
1. Hol 3,38
2. Pom. gospodarcze 1,87 (3,80)
3. Pokój 12,27 (14,25)
4. Pokój 11,99 (13,96)
5. Łazienka 5,66 (7,60)
6. Pokój 13,59 (17,91)
7. Schody 4,44
White
White

Porozmawiaj o projekcie

comments powered by Disqus