White
White

Projekt domu ARCHON+ Dom przy plantach 2 (PBA)

więcej o projekcie Dom przy plantach 2 (PBA) na archon.pl »
Budynek wielorodzinny do zabudowy bliźniaczej piętrowy
garaż, piwnica,
PARAMETRY TECHNICZNE
Powierzchnia domu 557,08 m2
Kubatura 3 232,73 m3
Powierzchnia zabudowy 235,94 m2
Powierzchnia użytkowa [i] 665,37 m2
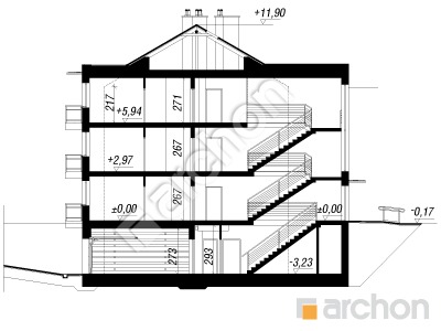
Wysokość 12,07 m
TECHNOLOGIA I KONSTRUKCJA:
ściany zewnetrzne: pustak ceramiczny Porotherm 25 cm, styropian 20 cm, tynk
strop: płyta żelbetowa
ścianka kolankowa: 217 cm
dach: dwuspadowy, nachylenie 30 st , więźba drewniana, blacha
W budynku zaprojektowano 9 mieszkań, w tym: 6 mieszkań o powierzchni ok. 60m2, i 3 mieszkania o powierzchni ok. 42m2. W podpiwniczeniu zlokalizowano garaż 6-stanowiskowy oraz komórki lokatorskie. Ogrzewanie mieszkań zaprojektowano w oparciu o przyłącz do miejskiej sieci ciepłowniczej.



CENA PROJEKTU:

40 700,00 zł

zamów na archon.pl
podyskutuj o projekcie Dom przy plantach 2 (PBA)
Dom przy plantach 2 (PBA)
PIWNICA 195,92 (198,97)
1. Schody 5,20
2. Korytarz 12,41 (15,46)
3. Korytarz 3,89
4. Piwnice 16,07
5. Garaż 46,66
6. Garaż 22,76
7. Garaż 22,76
8. Garaż 45,87
9. Pom. techniczne 16,59
10. Pom. techniczne 3,71
Dom przy plantach 2 (PBA)
PARTER 193,07
1. Korytarz 18,44
2. Schody 10,59
3. Mieszkanie 60,86
4. Mieszkanie 42,53
5. Mieszkanie 60,65
Dom przy plantach 2 (PBA)
PIĘTRO 187,39
1. Korytarz 13,40
2. Schody 10,33
3. Mieszkanie 60,80
4. Mieszkanie 42,39
5. Mieszkanie 60,47
Dom przy plantach 2 (PBA)
PODDASZE 176,60 (176,65)
1. Korytarz 13,35
2. Mieszkanie 60,66 (60,68)
3. Mieszkanie 42,27 (42,27)
4. Mieszkanie 60,32 (60,35)
White
White

Porozmawiaj o projekcie

comments powered by Disqus