Projekt domu ARCHON+ Dom w balsamowcach 11
		więcej o projekcie Dom w balsamowcach 11 na archon.pl »
		
			
				
					Dom jednorodzinny				 
				z poddaszem użytkowym		
				garaż, strych, 5 pokoi, 1 kuchnia, 2 łazienki, kotłownia, pralnia, garderoby, pomieszczenie gospodarcze, kominek, 				
			 
		    				
				
		
			
			
				
					
						| PARAMETRY TECHNICZNE | 
					
				
				
						
							
									Powierzchnia domu bez kotłowni, garażu, strychu
							 | 
							
								138,01 m2
							 | 
						
					
						
							| Powierzchnia kotłowni  | 
							6,57 m2 | 
						
					
						
							| Powierzchnia garażu | 
							19,28 m2 | 
						
					
					
						
							| Powierzchnia strychu  | 
							19,18 m2 | 
						
					
						
							| 
								Min. wymiary działki 
								[i]
							 | 
							
								21,70x17,90 m
							 | 
						
					
					
						
							| Kubatura | 
							874,52 m3 | 
						
					
						
							| Powierzchnia zabudowy | 
							128,54 m2 | 
						
					
						
							| 
								Powierzchnia użytkowa 
									[i]
							 | 
							
								127,84 m2
							 | 
						
					
						
							| Wysokość | 
							8,61 m | 
						
					
			
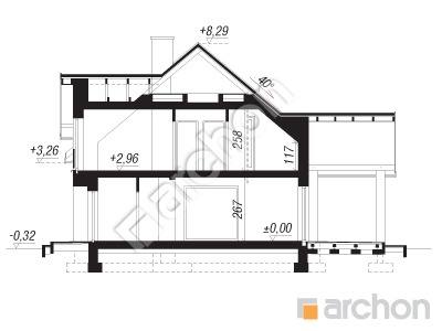
			  TECHNOLOGIA I KONSTRUKCJA:  
			  
			  
ściany zewnetrzne: bloczek z betonu komórkowego H+H 24 cm, styropian 20 cm, tynk			  
strop: płyta żelbetowa			  
ścianka kolankowa: 117 cm 			  
dach: dwuspadowy, nachylenie 40 st , 
I 30 st , więźba drewniana, dachówka ceramiczna			  
			
			
			
			
			CENA PROJEKTU: 
			
5 290,00 zł
			zamów na archon.pl
			podyskutuj o projekcie Dom w balsamowcach 11