White
White

Projekt domu ARCHON+ Dom w malinówkach 5 (B)

więcej o projekcie Dom w malinówkach 5 (B) na archon.pl »
Dom do zabudowy bliźniaczej z poddaszem użytkowym
garaż, 5 pokoi, 1 kuchnia, 2 łazienki, kotłownia, pralnia, garderoby, kominek,
PARAMETRY TECHNICZNE
Powierzchnia domu
bez kotłowni, garażu
121,64 m2
Powierzchnia kotłowni 4,36 m2
Powierzchnia garażu 16,46 m2
Min. wymiary działki [i] 17,67x15,80 m
* po adaptacji [i] 16,67x15,80 m
Kubatura 671,87 m3
Powierzchnia zabudowy 104,31 m2
Powierzchnia użytkowa [i] 112,02 m2
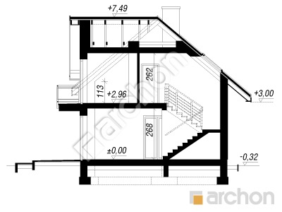
Wysokość 7,81 m
TECHNOLOGIA I KONSTRUKCJA:
ściany zewnetrzne: pustak ceramiczny Porotherm 25 cm, styropian 15 cm, tynk
strop: płyta żelbetowa
ścianka kolankowa: 113 cm
dach: dwuspadowy, nachylenie 40 st , więźba drewniana, dachówka ceramiczna



CENA PROJEKTU:

5 100,00 zł

zamów na archon.pl
podyskutuj o projekcie Dom w malinówkach 5 (B)
Dom w malinówkach 5 (B)
PARTER 76,33 (79,59)
1. Wiatrołap 7,82 (11,08)
2. Łazienka 3,11 (3,11)
3. Pokój 7,67 (7,67)
4. Salon + Jadalnia 27,66 (27,66)
5. Kuchnia 9,25 (9,25)
6. Kotłownia 4,36 (4,36)
7. Garaż 16,46 (16,46)
Dom w malinówkach 5 (B)
PODDASZE 66,13 (80,95)
1. Korytarz 6,87 (6,87)
2. Schody 5,66 (5,66)
3. Pralnia 4,47 (6,10)
4. Pokój 9,72 (13,27)
5. Pokój 8,63 (11,22)
6. Łazienka 4,75 (7,34)
7. Pokój 20,88 (22,39)
8. Garderoba 5,15 (8,10)
White
White

Porozmawiaj o projekcie

comments powered by Disqus