White
White

Projekt domu ARCHON+ Dom w alpiniach

więcej o projekcie Dom w alpiniach na archon.pl »
Dom jednorodzinny z poddaszem użytkowym
garaż, 6 pokoi, 1 kuchnia, 2 łazienki, kotłownia, garderoby, pomieszczenie gospodarcze, kominek,
PARAMETRY TECHNICZNE
Powierzchnia domu
bez kotłowni, garażu
162,40 m2
Powierzchnia kotłowni 4,43 m2
Powierzchnia garażu 23,19 m2
Min. wymiary działki [i] 22,12x19,58 m
Kubatura 926,50 m3
Powierzchnia zabudowy 141,49 m2
Powierzchnia użytkowa [i] 155,35 m2
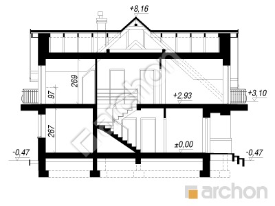
Wysokość 8,63 m
TECHNOLOGIA I KONSTRUKCJA:
ściany zewnetrzne: pustak ceramiczny Porotherm 25 cm, styropian 20 cm, tynk
strop: płyta żelbetowa
ścianka kolankowa: 97 cm
dach: czterospadowy, nachylenie 42 st , więźba drewniana, dachówka ceramiczna



CENA PROJEKTU:

5 850,00 zł

zamów na archon.pl
podyskutuj o projekcie Dom w alpiniach
Dom w alpiniach
PARTER 107,02 (107,78)
1. Wiatrołap 3,99
2. Hol 7,80 (8,56)
3. Schody 5,24
4. Salon + Jadalnia 34,15
5. Kuchnia 11,95
6. Łazienka 4,05
7. Korytarz 2,47
8. Gabinet 9,75
9. Garaż 23,19
10. Kotłownia 4,43
Dom w alpiniach
PODDASZE 83,00 (106,04)
1. Hol 8,04 (8,04)
2. Pokój {z garderobą} 11,26 (12,29)
3. Garderoba 1,30 (3,12)
4. Pom. gospodarcze 1,02 (3,38)
5. Łazienka 10,13 (11,01)
6. Pokój 11,93 (16,80)
7. Pokój 16,73 (18,82)
8. Garderoba 4,73 (9,40)
9. Pokój {z garderobą} 17,86 (23,18)
White
White

Porozmawiaj o projekcie

comments powered by Disqus