White
White

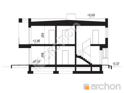
Projekt domu ARCHON+ Dom w bratkach 6 (R2B)

więcej o projekcie Dom w bratkach 6 (R2B) na archon.pl »
Dom dwurodzinny do zabudowy bliźniaczej piętrowy
6 pokoi, 2 kuchnie, 2 łazienki,
PARAMETRY TECHNICZNE
Powierzchnia domu 118,40 m2
Min. wymiary działki [i] 10,88x19,50 m
* po adaptacji [i] 9,88x19,50 m
Kubatura 568,19 m3
Powierzchnia zabudowy 79,37 m2
Powierzchnia użytkowa [i] 118,40 m2
Wysokość 7,00 m
TECHNOLOGIA I KONSTRUKCJA:
ściany zewnetrzne: pustak ceramiczny Porotherm 18,8 cm, styropian 20 cm, tynk
strop: płyta żelbetowa
dach: płaski, nachylenie 0 st , papa termozgrzewalna



CENA PROJEKTU:

5 870,00 zł

zamów na archon.pl
podyskutuj o projekcie Dom w bratkach 6 (R2B)
Dom w bratkach 6 (R2B)
PARTER 54,42 (55,15)
1. Wiatrołap 2,37
2. Hol 3,13 (3,86)
3. Łazienka 4,47
4. Pokój 8,20
5. Salon 13,69
6. Kuchnia 10,89
7. Pokój 11,67
Dom w bratkach 6 (R2B)
PIĘTRO 63,98
1. Hol i schody 9,40
2. Korytarz 5,12
3. Łazienka 4,47
4. Pokój 8,20
5. Salon 13,69
6. Kuchnia 10,79
7. Pokój 12,31
White
White

Porozmawiaj o projekcie

comments powered by Disqus