White
White

Projekt domu ARCHON+ Dom w gunnerach 2 (B)

więcej o projekcie Dom w gunnerach 2 (B) na archon.pl »
Dom do zabudowy bliźniaczej z poddaszem użytkowym
garaż, 5 pokoi, 1 kuchnia, 1 łazienka, WC, kotłownia, pralnia, garderoby, kominek,
PARAMETRY TECHNICZNE
Powierzchnia domu
bez kotłowni, garażu
106,39 m2
Powierzchnia kotłowni 6,05 m2
Powierzchnia garażu 17,85 m2
Min. wymiary działki [i] 13,68x17,80 m
* po adaptacji [i] 12,68x17,80 m
Kubatura 636,85 m3
Powierzchnia zabudowy 92,87 m2
Powierzchnia użytkowa [i] 99,78 m2
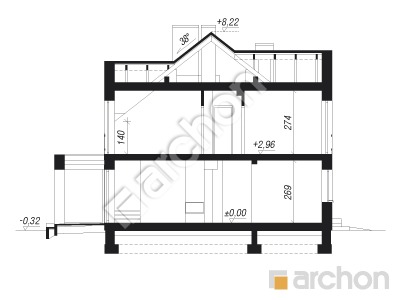
Wysokość 8,54 m
TECHNOLOGIA I KONSTRUKCJA:
ściany zewnetrzne: bloczek z betonu komórkowego H+H 24 cm, styropian 20 cm, tynk
strop: płyta żelbetowa
ścianka kolankowa: 140 cm
dach: dwuspadowy, nachylenie 38 st , więźba drewniana, blacha



CENA PROJEKTU:

4 990,00 zł

zamów na archon.pl
podyskutuj o projekcie Dom w gunnerach 2 (B)
Dom w gunnerach 2 (B)
PARTER 65,79 (66,70)
1. Wiatrołap 5,09
2. Salon + Jadalnia 26,37
3. Kuchnia 9,06
4. Toaleta 1,37 (2,28)
5. Kotłownia 6,05
6. Garaż 17,85
Dom w gunnerach 2 (B)
PODDASZE 64,50 (69,98)
1. Schody 4,45
2. Hol 6,95 (6,95)
3. Pokój 8,31 (9,29)
4. Pokój 8,50 (9,48)
5. Garderoba 3,89
6. Pokój 14,30 (14,93)
7. Pokój 9,60 (11,17)
8. Łazienka 5,78 (7,10)
9. Pralnia 2,72
White
White

Porozmawiaj o projekcie

comments powered by Disqus