White
White

Projekt domu ARCHON+ Dom w nerinach (G2)

więcej o projekcie Dom w nerinach (G2) na archon.pl »
Dom jednorodzinny parterowy
garaż, 4 pokoje, 1 kuchnia, 1 łazienka, spiżarka, WC, kotłownia, garderoby, kominek,
PARAMETRY TECHNICZNE
Powierzchnia domu
bez kotłowni, garażu
83,22 m2
Powierzchnia kotłowni 10,57 m2
Powierzchnia garażu 33,08 m2
Min. wymiary działki [i] 25,80x18,66 m
* po adaptacji [i] 23,80x16,66 m
Kubatura 833,04 m3
Powierzchnia zabudowy 165,85 m2
Powierzchnia użytkowa [i] 78,68 m2
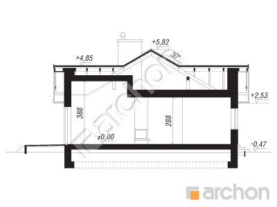
Wysokość 6,29 m
TECHNOLOGIA I KONSTRUKCJA:
ściany zewnetrzne: bloczek z betonu komórkowego YTONG 24 cm, styropian 20 cm, tynk
strop: płyta żelbetowa
dach: dwuspadowy, nachylenie 30 st , więźba drewniana, dachówka ceramiczna



CENA PROJEKTU:

4 920,00 zł

zamów na archon.pl
podyskutuj o projekcie Dom w nerinach (G2)
Dom w nerinach (G2)
PARTER 126,87
1. Wiatrołap 3,13
2. Hol 2,10
3. Kuchnia 10,13
4. Spiżarnia 1,26
5. Salon 24,53
6. Korytarz 4,84
7. Toaleta 1,52
8. Pokój {z garderobą} 8,75
9. Garderoba 3,28
10. Łazienka 5,19
11. Pokój 8,78
12. Pokój 9,71
13. Kotłownia 10,57
14. Garaż 33,08
White
White

Porozmawiaj o projekcie

comments powered by Disqus