White
White

Projekt domu ARCHON+ Dom w kameliach 2 (G2N)

więcej o projekcie Dom w kameliach 2 (G2N) na archon.pl »
Dom jednorodzinny parterowy z poddaszem użytkowym
garaż, strych, 5 pokoi, 1 kuchnia, 2 łazienki, spiżarka, kotłownia, pralnia, garderoby, kominek,
PARAMETRY TECHNICZNE
Powierzchnia domu
bez kotłowni, garażu, strychu
176,14 m2
Powierzchnia kotłowni 10,78 m2
Powierzchnia garażu 36,12 m2
Powierzchnia strychu 14,51 m2
Min. wymiary działki [i] 23,70x23,40 m
* po adaptacji [i] 22,70x23,40 m
Kubatura 1 086,55 m3
Powierzchnia zabudowy 184,33 m2
Powierzchnia użytkowa [i] 164,93 m2
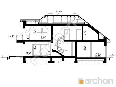
Wysokość 7,99 m
TECHNOLOGIA I KONSTRUKCJA:
ściany zewnetrzne: pustak ceramiczny Porotherm 25 cm, styropian 20 cm, tynk
strop: płyta żelbetowa
ścianka kolankowa: 115 cm
dach: czterospadowy, nachylenie 38 st , więźba drewniana, dachówka ceramiczna



CENA PROJEKTU:

6 240,00 zł

zamów na archon.pl
podyskutuj o projekcie Dom w kameliach 2 (G2N)
Dom w kameliach 2 (G2N)
PARTER 140,11 (140,95)
1. Wiatrołap 6,66
2. Hol 10,16
3. Salon + Jadalnia 39,43
4. Kuchnia 14,17
5. Spiżarnia 1,15 (1,99)
6. Przedpokój 2,82
7. Pokój 13,73
8. Łazienka 5,09
9. Kotłownia 10,78
10. Garaż 36,12
Dom w kameliach 2 (G2N)
PODDASZE 97,44 (142,16)
1. Hol i schody 11,25 (11,25)
2. Pokój {z garderobą} 15,77 (19,92)
3. Garderoba 2,95 (5,98)
4. Pokój 24,04 (30,39)
5. Pokój {z garderobą} 15,98 (20,82)
6. Garderoba 3,51 (6,72)
7. Łazienka 5,83 (8,68)
8. Pralnia 3,60 (6,48)
9. Strych 14,51 (31,92)
White
White

Porozmawiaj o projekcie

comments powered by Disqus