White
White

Projekt domu ARCHON+ Dom w budlejach 2

więcej o projekcie Dom w budlejach 2 na archon.pl »
Dom jednorodzinny parterowy z poddaszem użytkowym
garaż, 6 pokoi, 1 kuchnia, 2 łazienki, spiżarka, kotłownia, garderoby, kominek,
PARAMETRY TECHNICZNE
Powierzchnia domu
bez kotłowni, garażu
146,34 m2
Powierzchnia kotłowni 3,96 m2
Powierzchnia garażu 26,28 m2
Min. wymiary działki [i] 21,50x18,00 m
* po adaptacji [i] 19,40x18,00 m
Kubatura 803,27 m3
Powierzchnia zabudowy 125,64 m2
Powierzchnia użytkowa [i] 138,24 m2
Wysokość 7,33 m
TECHNOLOGIA I KONSTRUKCJA:
ściany zewnetrzne: pustak ceramiczny Porotherm 25 cm, styropian 20 cm, tynk
strop: płyta żelbetowa
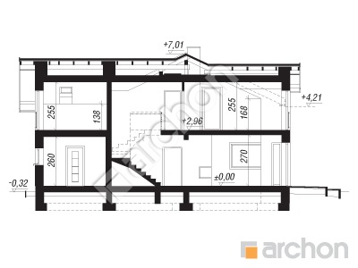
ścianka kolankowa: 168 cm
dach: dwuspadowy, nachylenie 25 st , więźba drewniana, dachówka ceramiczna



CENA PROJEKTU:

5 550,00 zł

zamów na archon.pl
podyskutuj o projekcie Dom w budlejach 2
Dom w budlejach 2
PARTER 92,64 (93,21)
1. Wiatrołap 3,79
2. Hol 3,63
3. Salon + Jadalnia 26,53
4. Kuchnia 9,83
5. Spiżarnia 1,28
6. Pokój 13,11
7. Łazienka 4,23 (4,80)
8. Kotłownia 3,96
9. Garaż 26,28
Dom w budlejach 2
PODDASZE 83,94 (96,22)
1. Hol i schody 13,57 (13,57)
2. Pokój 10,87 (12,73)
3. Pokój 17,97 (19,67)
4. Pokój 16,83 (18,53)
5. Garderoba 6,82 (8,00)
6. Łazienka 7,41 (10,33)
7. Pokój 10,47 (13,39)
White
White

Porozmawiaj o projekcie

comments powered by Disqus