White
White

Projekt domu ARCHON+ Dom nad bulwarem 3 (SN)

więcej o projekcie Dom nad bulwarem 3 (SN) na archon.pl »
Budynek wielorodzinny do zabudowy szeregowej piętrowy
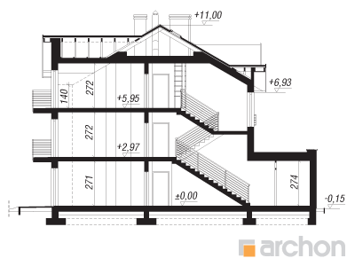
PARAMETRY TECHNICZNE
Powierzchnia domu 435,03 m2
Kubatura 1 841,52 m3
Powierzchnia zabudowy 194,82 m2
Powierzchnia użytkowa [i] 388,30 m2
Wysokość 11,15 m
TECHNOLOGIA I KONSTRUKCJA:
ściany zewnetrzne: pustak ceramiczny Porotherm 25 cm, styropian 15 cm, tynk
strop: płyta żelbetowa
ścianka kolankowa: 140 cm
dach: dwuspadowy, nachylenie 30 st , więźba drewniana, blacha dachówkowa
W budynku zaprojektowano 9 mieszkań, w tym: 6 mieszkań o powierzchni około 50m2 oraz 3 mieszkania około 30m2.



CENA PROJEKTU:

20 400,00 zł

zamów na archon.pl
podyskutuj o projekcie Dom nad bulwarem 3 (SN)
Dom nad bulwarem 3 (SN)
PARTER 153,54 (156,76)
1. Wiatrołap 5,12
2. Klatka schodowa 15,76 (18,98)
3. Mieszkanie 51,94
4. Mieszkanie 28,78
5. Mieszkanie 51,94
Dom nad bulwarem 3 (SN)
PIĘTRO 147,63
1. Klatka schodowa 15,53
2. Mieszkanie 51,75
3. Mieszkanie 28,60
4. Mieszkanie 51,75
Dom nad bulwarem 3 (SN)
PODDASZE 133,86 (142,14)
1. Klatka schodowa 10,32
2. Mieszkanie 47,51 (51,65)
3. Mieszkanie 28,52 (28,52)
4. Mieszkanie 47,51 (51,65)
White
White

Porozmawiaj o projekcie

comments powered by Disqus