White
White

Projekt domu ARCHON+ Dom nad bulwarem 3 (BN)

więcej o projekcie Dom nad bulwarem 3 (BN) na archon.pl »
Budynek wielorodzinny do zabudowy bliźniaczej piętrowy
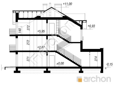
PARAMETRY TECHNICZNE
Powierzchnia domu 434,70 m2
Kubatura 1 858,22 m3
Powierzchnia zabudowy 196,94 m2
Powierzchnia użytkowa [i] 388,35 m2
Wysokość 11,15 m
TECHNOLOGIA I KONSTRUKCJA:
ściany zewnetrzne: pustak ceramiczny Porotherm 25 cm, styropian 15 cm, tynk
strop: płyta żelbetowa
ścianka kolankowa: 140 cm
dach: dwuspadowy, nachylenie 30 st , więźba drewniana, blacha dachówkowa
W budynku zaprojektowano 9 mieszkań, w tym: 6 mieszkań o powierzchni około 50m2 oraz 3 mieszkania około 30m2.



CENA PROJEKTU:

26 000,00 zł

zamów na archon.pl
podyskutuj o projekcie Dom nad bulwarem 3 (BN)
Dom nad bulwarem 3 (BN)
PARTER 153,59 (156,81)
1. Wiatrołap 5,12 (5,12)
2. Klatka schodowa 15,76 (18,98)
3. Mieszkanie 51,99 (51,99)
4. Mieszkanie 28,78 (28,78)
5. Mieszkanie 51,94 (51,94)
Dom nad bulwarem 3 (BN)
PIĘTRO 147,63 (147,63)
1. Klatka schodowa 15,53 (15,53)
2. Mieszkanie 51,75 (51,75)
3. Mieszkanie 28,60 (28,60)
4. Mieszkanie 51,75 (51,75)
Dom nad bulwarem 3 (BN)
PODDASZE 133,48 (141,76)
1. Klatka schodowa 9,94 (9,94)
2. Mieszkanie 47,51 (51,65)
3. Mieszkanie 28,52 (28,52)
4. Mieszkanie 47,51 (51,65)
White
White

Porozmawiaj o projekcie

comments powered by Disqus