White
White

Projekt domu ARCHON+ Dom w bugenwillach

więcej o projekcie Dom w bugenwillach na archon.pl »
Dom jednorodzinny z poddaszem użytkowym
garaż, 6 pokoi, 1 kuchnia, 2 łazienki, spiżarka, kotłownia, pralnia, garderoby, kominek,
PARAMETRY TECHNICZNE
Powierzchnia domu
bez kotłowni, garażu
147,75 m2
Powierzchnia kotłowni 6,16 m2
Powierzchnia garażu 18,33 m2
Min. wymiary działki [i] 22,50x18,20 m
* po adaptacji [i] 21,50x17,00 m
Kubatura 838,19 m3
Powierzchnia zabudowy 129,32 m2
Powierzchnia użytkowa [i] 137,73 m2
Wysokość 8,41 m
TECHNOLOGIA I KONSTRUKCJA:
ściany zewnetrzne: pustak ceramiczny Porotherm 25 cm, styropian 20 cm, tynk
strop: płyta żelbetowa
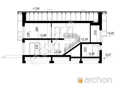
ścianka kolankowa: 128 cm
dach: dwuspadowy, nachylenie 40 st , więźba drewniana, dachówka ceramiczna



CENA PROJEKTU:

5 550,00 zł

zamów na archon.pl
podyskutuj o projekcie Dom w bugenwillach
Dom w bugenwillach
PARTER 95,06 (97,11)
1. Wiatrołap 2,86
2. Hol 7,80
3. Salon + Jadalnia 31,26
4. Kuchnia 10,77
5. Łazienka 5,55
6. Pokój 9,96
7. Spiżarnia 2,37 (4,42)
8. Kotłownia 6,16
9. Garaż 18,33
Dom w bugenwillach
PODDASZE 77,18 (98,59)
1. Hol i schody 15,23 (15,23)
2. Pokój 10,17 (12,55)
3. Łazienka 8,09 (8,44)
4. Pralnia 4,60 (6,46)
5. Garderoba 3,05 (8,07)
6. Pokój 13,52 (16,37)
7. Pokój 13,92 (17,13)
8. Pokój 8,60 (14,34)
White
White

Porozmawiaj o projekcie

comments powered by Disqus