White
White

Projekt domu ARCHON+ Dom w rododendronach 6 (G2A)

więcej o projekcie Dom w rododendronach 6 (G2A) na archon.pl »
Dom jednorodzinny parterowy z poddaszem użytkowym
garaż, 5 pokoi, 1 kuchnia, 2 łazienki, spiżarka, kotłownia, pralnia, garderoby, pomieszczenie gospodarcze, kominek,
PARAMETRY TECHNICZNE
Powierzchnia domu
bez kotłowni, garażu
171,73 m2
Powierzchnia kotłowni 5,42 m2
Powierzchnia garażu 37,21 m2
Min. wymiary działki [i] 26,52x17,62 m
* po adaptacji [i] 24,22x17,12 m
Kubatura 1 002,60 m3
Powierzchnia zabudowy 157,50 m2
Powierzchnia użytkowa [i] 147,82 m2
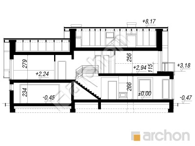
Wysokość 8,64 m
TECHNOLOGIA I KONSTRUKCJA:
ściany zewnetrzne: pustak ceramiczny Porotherm 25 cm, styropian 20 cm, tynk
strop: płyta żelbetowa
ścianka kolankowa: 115 cm
dach: dwuspadowy, nachylenie 40 st , więźba drewniana, dachówka ceramiczna



CENA PROJEKTU:

6 240,00 zł

zamów na archon.pl
podyskutuj o projekcie Dom w rododendronach 6 (G2A)
Dom w rododendronach 6 (G2A)
PARTER 116,92 (117,09)
1. Wiatrołap 3,92 (3,92)
2. Hol 3,80 (3,80)
3. Spiżarnia 1,34 (1,34)
4. Kuchnia 8,68 (8,68)
5. Salon 32,63 (32,63)
6. Pokój 11,62 (11,62)
7. Łazienka 4,37 (4,54)
8. Kotłownia 5,42 (5,42)
9. Pom. gospodarcze 3,99 (3,99)
10. Pom. gospodarcze 3,94 (3,94)
11. Garaż 37,21 (37,21)
Dom w rododendronach 6 (G2A)
PODDASZE 97,44 (118,51)
1. Pokój {z garderobą} 13,78 (15,46)
2. Garderoba 3,25 (4,24)
3. Pokój {z garderobą} 25,79 (28,85)
4. Garderoba 5,86 (7,81)
5. Pokój {z garderobą} 24,21 (32,14)
6. Garderoba 2,89 (4,47)
7. Pralnia 2,64 (4,22)
8. Łazienka 5,65 (7,95)
9. Hol i schody 13,37 (13,37)
White
White

Porozmawiaj o projekcie

comments powered by Disqus