White
White

Projekt domu ARCHON+ Dom w perłówce 3

więcej o projekcie Dom w perłówce 3 na archon.pl »
Dom jednorodzinny parterowy z poddaszem użytkowym
garaż, 4 pokoje, 1 kuchnia, 2 łazienki, kotłownia, garderoby, pomieszczenie gospodarcze, kominek,
PARAMETRY TECHNICZNE
Powierzchnia domu
bez kotłowni, garażu
89,89 m2
Powierzchnia kotłowni 5,49 m2
Powierzchnia garażu 18,00 m2
Min. wymiary działki [i] 20,62x15,52 m
* po adaptacji [i] 19,02x15,52 m
Kubatura 555,48 m3
Powierzchnia zabudowy 90,15 m2
Powierzchnia użytkowa [i] 86,10 m2
Wysokość 8,10 m
TECHNOLOGIA I KONSTRUKCJA:
ściany zewnetrzne: pustak ceramiczny Porotherm 25 cm, styropian 20 cm, tynk
strop: płyta żelbetowa
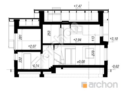
ścianka kolankowa: 113 cm
dach: dwuspadowy, nachylenie 40 st , więźba drewniana, dachówka ceramiczna



CENA PROJEKTU:

4 790,00 zł

zamów na archon.pl
podyskutuj o projekcie Dom w perłówce 3
Dom w perłówce 3
PARTER 64,10 (64,46)
1. Wiatrołap 2,38
2. Hol 3,89
3. Łazienka 3,56
4. Garderoba 2,12 (2,48)
5. Garaż 18,00
6. Kotłownia 5,49
7. Salon + Jadalnia 20,26
8. Kuchnia 8,40
Dom w perłówce 3
PODDASZE 49,28 (65,42)
1. Schody 4,49 (4,49)
2. Pom. gospodarcze 1,67 (3,84)
3. Pokój 10,42 (14,14)
4. Pokój 10,30 (13,87)
5. Hol 3,41 (3,41)
6. Łazienka 5,34 (7,67)
7. Pokój 13,65 (18,00)
White
White

Porozmawiaj o projekcie

comments powered by Disqus