White
White

Projekt domu ARCHON+ Dom w pomelo

więcej o projekcie Dom w pomelo na archon.pl »
Dom jednorodzinny parterowy z poddaszem użytkowym
garaż, 6 pokoi, 1 kuchnia, 2 łazienki, kotłownia, pralnia, garderoby, pomieszczenie gospodarcze, kominek,
PARAMETRY TECHNICZNE
Powierzchnia domu
bez kotłowni, garażu
149,42 m2
Powierzchnia kotłowni 6,15 m2
Powierzchnia garażu 35,31 m2
Min. wymiary działki [i] 25,76x18,26 m
* po adaptacji [i] 24,76x18,26 m
Kubatura 936,33 m3
Powierzchnia zabudowy 149,23 m2
Powierzchnia użytkowa [i] 137,88 m2
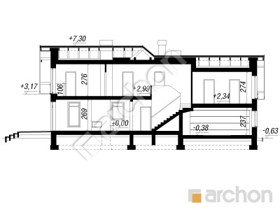
Wysokość 7,93 m
TECHNOLOGIA I KONSTRUKCJA:
ściany zewnetrzne: bloczek z betonu komórkowego YTONG 24 cm, styropian 20 cm, tynk
strop: płyta żelbetowa
ścianka kolankowa: 106 cm
dach: dwuspadowy, nachylenie 40 st , więźba drewniana, dachówka ceramiczna



CENA PROJEKTU:

5 850,00 zł

zamów na archon.pl
podyskutuj o projekcie Dom w pomelo
Dom w pomelo
PARTER 106,33 (106,84)
1. Wiatrołap 5,76
2. Kotłownia 6,15
3. Łazienka 4,13
4. Garaż 35,31 (35,82)
5. Pokój 11,02
6. Hol 4,65
7. Salon + Jadalnia 29,22
8. Kuchnia 10,09
Dom w pomelo
PODDASZE 84,55 (113,45)
1. Schody 4,80 (4,80)
2. Pok.rekreacyjny 14,88 (20,71)
3. Pokój 12,75 (17,32)
4. Hol 8,71 (8,71)
5. Pokój {z garderobą} 12,73 (16,35)
6. Garderoba 5,07 (8,69)
7. Pokój 13,12 (15,62)
8. Łazienka 6,02 (9,10)
9. Pralnia 3,26 (5,97)
10. Pom. gospodarcze 3,21 (6,18)
White
White

Porozmawiaj o projekcie

comments powered by Disqus