White
White

Projekt domu ARCHON+ Dom w orliczkach (G2PA)

więcej o projekcie Dom w orliczkach (G2PA) na archon.pl »
Dom jednorodzinny z poddaszem użytkowym
garaż, piwnica, strych, 5 pokoi, 1 kuchnia, 2 łazienki, spiżarka, kotłownia, pralnia, garderoby, pomieszczenie gospodarcze, kominek,
PARAMETRY TECHNICZNE
Powierzchnia domu
bez garażu, strychu, piwnic
157,87 m2
Powierzchnia garażu 39,09 m2
Powierzchnia piwnic 65,68 m2
Powierzchnia strychu 12,99 m2
Min. wymiary działki [i] 23,90x18,80 m
* po adaptacji [i] 21,90x18,80 m
Kubatura 1 273,07 m3
Powierzchnia zabudowy 154,73 m2
Powierzchnia użytkowa [i] 145,19 m2
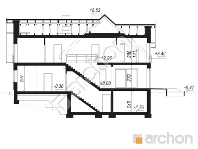
Wysokość 9,00 m
TECHNOLOGIA I KONSTRUKCJA:
ściany zewnetrzne: pustak ceramiczny Porotherm 25 cm, styropian 20 cm, tynk
strop: płyta żelbetowa
ścianka kolankowa: 141 cm
dach: dwuspadowy, nachylenie 42 st , więźba drewniana, dachówka ceramiczna



CENA PROJEKTU:

6 240,00 zł

zamów na archon.pl
podyskutuj o projekcie Dom w orliczkach (G2PA)
Dom w orliczkach (G2PA)
PIWNICA 65,68 (68,43)
1. Schody 3,65
2. Pom. gospodarcze 14,53 (17,28)
3. Spiżarnia 8,47
4. Pom. gospodarcze 17,09
5. Kotłownia 21,94
Dom w orliczkach (G2PA)
PARTER 107,93
1. Wiatrołap 6,46
2. Hol 4,29
3. Łazienka 2,71
4. Kuchnia 14,59
5. Salon + Jadalnia 34,23
6. Pom. gospodarcze 6,56
7. Garaż 39,09
Dom w orliczkach (G2PA)
PODDASZE 102,02 (120,38)
1. Hol i schody 17,79 (17,79)
2. Pokój 13,25 (14,27)
3. Pokój 18,57 (19,37)
4. Garderoba 2,00 (2,43)
5. Pokój 10,89 (12,47)
6. Pokój 13,80 (14,90)
7. Strych 12,99 (19,87)
8. Łazienka 8,61 (12,08)
9. Pralnia 4,12 (7,20)
White
White

Porozmawiaj o projekcie

comments powered by Disqus