White
White

Projekt domu ARCHON+ Dom pod soforą

więcej o projekcie Dom pod soforą na archon.pl »
Dom jednorodzinny parterowy z poddaszem użytkowym
5 pokoi, 1 kuchnia, 2 łazienki, spiżarka, jadalnia, kotłownia, pralnia, garderoby, antersola, kominek,
PARAMETRY TECHNICZNE
Powierzchnia domu
bez kotłowni
173,75 m2
Powierzchnia kotłowni 9,63 m2
Min. wymiary działki [i] 21,90x19,70 m
* po adaptacji [i] 21,90x18,70 m
Kubatura 989,47 m3
Powierzchnia zabudowy 143,26 m2
Powierzchnia użytkowa [i] 158,20 m2
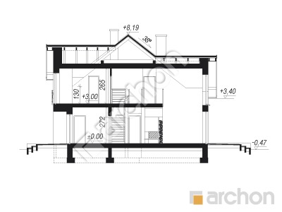
Wysokość 8,66 m
TECHNOLOGIA I KONSTRUKCJA:
ściany zewnetrzne: pustak ceramiczny Porotherm 25 cm, styropian 20 cm, tynk
strop: płyta żelbetowa
ścianka kolankowa: 130 cm
dach: dwuspadowy, nachylenie 38 st , więźba drewniana, dachówka ceramiczna



CENA PROJEKTU:

5 850,00 zł

zamów na archon.pl
podyskutuj o projekcie Dom pod soforą
Dom pod soforą
PARTER 95,86 (98,25)
1. Wiatrołap 7,71
2. Kotłownia 9,63
3. Przedpokój 1,80 (2,40)
4. Łazienka 5,43
5. Pokój 10,86
6. Salon 31,03 (32,82)
7. Jadalnia 15,22
8. Kuchnia 11,36
9. Spiżarnia 2,82
Dom pod soforą
PODDASZE 87,52 (97,81)
1. Schody 5,16
2. Antresola 18,37
3. Pokój 13,41 (15,88)
4. Pokój 13,77 (16,23)
5. Pokój {z garderobą} 16,44 (16,94)
6. Garderoba 8,01 (10,48)
7. Łazienka 7,64
8. Pralnia 4,72 (7,11)
White
White

Porozmawiaj o projekcie

comments powered by Disqus