White
White

Projekt domu ARCHON+ Dom w śliwach 2

więcej o projekcie Dom w śliwach 2 na archon.pl »
Dom jednorodzinny z poddaszem użytkowym
5 pokoi, 1 kuchnia, 2 łazienki, spiżarka, kotłownia, garderoby, kominek,
PARAMETRY TECHNICZNE
Powierzchnia domu
bez kotłowni
147,94 m2
Powierzchnia kotłowni 8,52 m2
Min. wymiary działki [i] 21,10x17,90 m
* po adaptacji [i] 19,70x17,40 m
Kubatura 809,73 m3
Powierzchnia zabudowy 123,41 m2
Powierzchnia użytkowa [i] 132,69 m2
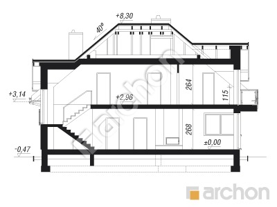
Wysokość 8,77 m
TECHNOLOGIA I KONSTRUKCJA:
ściany zewnetrzne: pustak ceramiczny Porotherm 25 cm, styropian 20 cm, tynk
strop: płyta żelbetowa
ścianka kolankowa: 115 cm
dach: czterospadowy, nachylenie 40 st , więźba drewniana, dachówka ceramiczna



CENA PROJEKTU:

5 420,00 zł

zamów na archon.pl
podyskutuj o projekcie Dom w śliwach 2
Dom w śliwach 2
PARTER 80,55 (84,94)
1. Wiatrołap 4,34
2. Spiżarnia 1,71
3. Kuchnia 11,02
4. Salon + Jadalnia 38,84
5. Gabinet 11,00
6. Kotłownia 8,52 (12,91)
7. Łazienka 5,12
Dom w śliwach 2
PODDASZE 75,91 (93,78)
1. Schody 5,95
2. Korytarz 8,32
3. Łazienka 7,52 (12,04)
4. Pokój 12,83 (14,29)
5. Garderoba 2,77 (5,52)
6. Pokój {z garderobą} 11,80 (12,18)
7. Garderoba 4,60 (8,25)
8. Pokój {z garderobą} 15,95 (17,00)
9. Garderoba 6,17 (10,23)
White
White

Porozmawiaj o projekcie

comments powered by Disqus