White
White

Projekt domu ARCHON+ Dom w bugenwillach (P)

więcej o projekcie Dom w bugenwillach (P) na archon.pl »
Dom jednorodzinny z poddaszem użytkowym
garaż, piwnica, 6 pokoi, 1 kuchnia, 2 łazienki, spiżarka, kotłownia, pralnia, garderoby, pomieszczenie gospodarcze, kominek,
PARAMETRY TECHNICZNE
Powierzchnia domu
bez garażu, piwnic
152,02 m2
Powierzchnia garażu 18,33 m2
Powierzchnia piwnic 71,64 m2
Min. wymiary działki [i] 22,50x18,20 m
* po adaptacji [i] 21,50x17,00 m
Kubatura 1 032,78 m3
Powierzchnia zabudowy 129,32 m2
Powierzchnia użytkowa [i] 138,77 m2
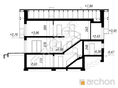
Wysokość 8,41 m
TECHNOLOGIA I KONSTRUKCJA:
ściany zewnetrzne: pustak ceramiczny Porotherm 25 cm, styropian 20 cm, tynk
strop: płyta żelbetowa
ścianka kolankowa: 128 cm
dach: dwuspadowy, nachylenie 40 st , więźba drewniana, dachówka ceramiczna



CENA PROJEKTU:

5 850,00 zł

zamów na archon.pl
podyskutuj o projekcie Dom w bugenwillach (P)
Dom w bugenwillach (P)
PIWNICA 71,64 (74,73)
1. Schody 2,78
2. Korytarz 6,87 (9,96)
3. Pom. gospodarcze 15,34
4. Pom. gospodarcze 30,19
5. Kotłownia 16,46
Dom w bugenwillach (P)
PARTER 93,82
1. Wiatrołap 2,95
2. Hol 6,81
3. Salon + Jadalnia 31,26
4. Kuchnia 10,77
5. Łazienka 4,97
6. Pokój 10,32
7. Schody 1,86
8. Spiżarnia 6,55
9. Garaż 18,33
Dom w bugenwillach (P)
PODDASZE 76,53 (98,41)
1. Hol i schody 14,23 (14,23)
2. Pokój 10,12 (12,84)
3. Łazienka 9,27 (9,82)
4. Pralnia 3,65 (5,43)
5. Garderoba 3,05 (8,07)
6. Pokój 13,47 (16,32)
7. Pokój 13,41 (16,45)
8. Pokój 9,33 (15,25)
White
White

Porozmawiaj o projekcie

comments powered by Disqus