White
White

Projekt domu ARCHON+ Dom w werbenach 2 (G2)

więcej o projekcie Dom w werbenach 2 (G2) na archon.pl »
Dom jednorodzinny z poddaszem użytkowym
garaż, strych, 5 pokoi, 1 kuchnia, 2 łazienki, kotłownia, pralnia, garderoby, pomieszczenie gospodarcze, kominek,
PARAMETRY TECHNICZNE
Powierzchnia domu
bez kotłowni, garażu, strychu
124,16 m2
Powierzchnia kotłowni 4,88 m2
Powierzchnia garażu 34,93 m2
Powierzchnia strychu 16,30 m2
Min. wymiary działki [i] 25,80x16,12 m
* po adaptacji [i] 23,80x16,12 m
Kubatura 864,50 m3
Powierzchnia zabudowy 132,49 m2
Powierzchnia użytkowa [i] 110,99 m2
Wysokość 8,68 m
TECHNOLOGIA I KONSTRUKCJA:
ściany zewnetrzne: pustak ceramiczny Porotherm 25 cm, styropian 20 cm, tynk
strop: płyta żelbetowa
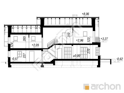
ścianka kolankowa: 123 cm
dach: dwuspadowy, nachylenie 42 st , więźba drewniana, dachówka ceramiczna



CENA PROJEKTU:

5 550,00 zł

zamów na archon.pl
podyskutuj o projekcie Dom w werbenach 2 (G2)
Dom w werbenach 2 (G2)
PARTER 98,16 (99,76)
1. Wiatrołap 2,72
2. Hol 6,36
3. Kuchnia 9,03
4. Salon 26,04
5. Łazienka 2,44
6. Kotłownia 4,88
7. Korytarz 2,72 (4,32)
8. Pokój 9,04
9. Garaż 34,93
Dom w werbenach 2 (G2)
PODDASZE 82,11 (95,90)
1. Schody 4,33 (4,33)
2. Hol 5,96 (5,96)
3. Łazienka 6,18 (8,30)
4. Pokój 14,62 (16,74)
5. Pokój 11,89 (14,00)
6. Pokój {z garderobą} 9,66 (10,92)
7. Garderoba 2,48 (3,25)
8. Pom. gospodarcze 7,75 (9,18)
9. Pralnia 2,94 (5,58)
10. Strych ocieplony 16,30 (17,64)
White
White

Porozmawiaj o projekcie

comments powered by Disqus