White
White

Projekt domu ARCHON+ Dom w werbenach (G2)

więcej o projekcie Dom w werbenach (G2) na archon.pl »
Dom jednorodzinny parterowy z poddaszem użytkowym
garaż, 7 pokoi, 1 kuchnia, 2 łazienki, kotłownia, garderoby, pomieszczenie gospodarcze, kominek,
PARAMETRY TECHNICZNE
Powierzchnia domu
bez kotłowni, garażu
133,10 m2
Powierzchnia kotłowni 4,20 m2
Powierzchnia garażu 35,36 m2
Min. wymiary działki [i] 25,62x16,12 m
* po adaptacji [i] 23,82x16,12 m
Kubatura 834,08 m3
Powierzchnia zabudowy 132,04 m2
Powierzchnia użytkowa [i] 129,98 m2
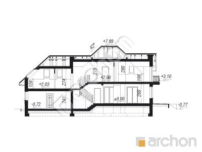
Wysokość 8,66 m
TECHNOLOGIA I KONSTRUKCJA:
ściany zewnetrzne: pustak ceramiczny Porotherm 25 cm, styropian 20 cm, tynk
strop: płyta żelbetowa
ścianka kolankowa: 106 cm
dach: czterospadowy, nachylenie 42 st , więźba drewniana, dachówka ceramiczna



CENA PROJEKTU:

5 550,00 zł

zamów na archon.pl
podyskutuj o projekcie Dom w werbenach (G2)
Dom w werbenach (G2)
PARTER 100,69 (101,70)
1. Wiatrołap 3,21
2. Hol 7,36
3. Salon + Jadalnia 25,66
4. Kuchnia 7,72
5. Łazienka 2,57
6. Kotłownia 4,20
7. Garaż 35,36
8. Korytarz 3,65 (4,66)
9. Schody 2,28
10. Pokój 8,68
Dom w werbenach (G2)
PODDASZE 71,97 (96,72)
1. Hol i schody 7,46 (7,46)
2. Pokój {z garderobą} 9,33 (11,17)
3. Pokój 10,56 (14,39)
4. Pokój 13,92 (17,72)
5. Łazienka 5,13 (8,94)
6. Pom. gospodarcze 2,16 (3,63)
7. Pokój 14,40 (21,05)
8. Pom. rekreacyjne 8,05 (9,52)
9. Garderoba 0,96 (2,84)
White
White

Porozmawiaj o projekcie

comments powered by Disqus