White
White

Projekt domu ARCHON+ Dom w kaliach 2

więcej o projekcie Dom w kaliach 2 na archon.pl »
Dom jednorodzinny parterowy z poddaszem użytkowym
garaż, 7 pokoi, 1 kuchnia, 2 łazienki, spiżarka, kotłownia, pralnia, garderoby, kominek,
PARAMETRY TECHNICZNE
Powierzchnia domu
bez kotłowni, garażu
184,21 m2
Powierzchnia kotłowni 6,34 m2
Powierzchnia garażu 18,53 m2
Min. wymiary działki [i] 24,80x17,32 m
* po adaptacji [i] 22,80x17,32 m
Kubatura 1 060,29 m3
Powierzchnia zabudowy 149,41 m2
Powierzchnia użytkowa [i] 167,90 m2
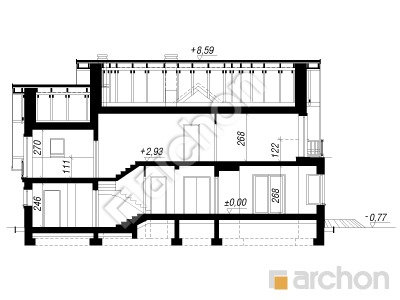
Wysokość 9,36 m
TECHNOLOGIA I KONSTRUKCJA:
ściany zewnetrzne: pustak ceramiczny Porotherm 25 cm, styropian 20 cm, tynk
strop: płyta żelbetowa
ścianka kolankowa: 122 cm
dach: dwuspadowy, nachylenie 42 st , więźba drewniana, dachówka ceramiczna



CENA PROJEKTU:

5 850,00 zł

zamów na archon.pl
podyskutuj o projekcie Dom w kaliach 2
Dom w kaliach 2
PARTER 111,08 (113,31)
1. Wiatrołap 3,45
2. Spiżarnia 1,57
3. Kuchnia 12,22
4. Salon + Jadalnia 35,63
5. Pokój 12,31
6. Hol 9,57
7. Garderoba 2,18
8. Pralnia 3,48
9. Łazienka 2,68
10. Korytarz 3,12 (5,35)
11. Garaż 18,53
12. Kotłownia 6,34
Dom w kaliach 2
PODDASZE 98,00 (112,70)
1. Schody 5,22 (5,22)
2. Hol 8,27 (8,27)
3. Pokój 14,30 (16,71)
4. Pokój {z garderobą} 14,00 (15,19)
5. Garderoba 4,62 (5,84)
6. Pokój {z garderobą} 15,85 (18,37)
7. Garderoba 4,46 (6,98)
8. Łazienka 8,56 (10,99)
9. Pokój 9,04 (9,12)
10. Pokój 13,68 (16,01)
White
White

Porozmawiaj o projekcie

comments powered by Disqus