White
White

Projekt domu ARCHON+ Dom w antonówkach 2 (G)

więcej o projekcie Dom w antonówkach 2 (G) na archon.pl »
Dom jednorodzinny z poddaszem użytkowym
garaż, 5 pokoi, 1 kuchnia, 2 łazienki, jadalnia, kotłownia, pralnia, garderoby, kominek,
PARAMETRY TECHNICZNE
Powierzchnia domu
bez kotłowni, garażu
134,87 m2
Powierzchnia kotłowni 5,07 m2
Powierzchnia garażu 19,78 m2
Min. wymiary działki [i] 20,10x18,60 m
* po adaptacji [i] 18,60x18,60 m
Kubatura 774,07 m3
Powierzchnia zabudowy 116,72 m2
Powierzchnia użytkowa [i] 122,36 m2
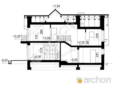
Wysokość 8,47 m
TECHNOLOGIA I KONSTRUKCJA:
ściany zewnetrzne: cegła wapienno piaskowa SILKA 24 cm, styropian 20 cm, tynk
strop: płyta żelbetowa
ścianka kolankowa: 124 cm
dach: dwuspadowy, nachylenie 42 st , więźba drewniana, dachówka ceramiczna



CENA PROJEKTU:

5 420,00 zł

zamów na archon.pl
podyskutuj o projekcie Dom w antonówkach 2 (G)
Dom w antonówkach 2 (G)
PARTER 91,61 (93,90)
1. Wiatrołap 2,87
2. Kuchnia 8,61
3. Jadalnia 10,14
4. Salon 23,89
5. Korytarz 3,80 (6,09)
6. Schody 6,74
7. Hol 6,35
8. Łazienka 4,36
9. Garaż 19,78
10. Kotłownia 5,07
Dom w antonówkach 2 (G)
PODDASZE 68,11 (81,27)
1. Pokój 9,01 (10,67)
2. Pokój 8,77 (9,29)
3. Pokój {z garderobą} 13,87 (15,94)
4. Garderoba 5,15 (7,17)
5. Hol 5,43 (5,43)
6. Łazienka 7,78 (9,56)
7. Pokój 10,74 (14,17)
8. Pralnia 7,36 (9,04)
White
White

Porozmawiaj o projekcie

comments powered by Disqus