White
White

Projekt domu ARCHON+ Dom w wiciokrzewie

więcej o projekcie Dom w wiciokrzewie na archon.pl »
Dom jednorodzinny parterowy z poddaszem użytkowym
garaż, 5 pokoi, 1 kuchnia, 2 łazienki, spiżarka, kotłownia, garderoby, kominek,
PARAMETRY TECHNICZNE
Powierzchnia domu
bez kotłowni, garażu
151,46 m2
Powierzchnia kotłowni 9,51 m2
Powierzchnia garażu 22,24 m2
Min. wymiary działki [i] 23,10x19,02 m
* po adaptacji [i] 21,30x17,72 m
Kubatura 903,49 m3
Powierzchnia zabudowy 140,00 m2
Powierzchnia użytkowa [i] 142,60 m2
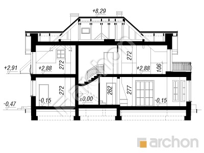
Wysokość 8,76 m
TECHNOLOGIA I KONSTRUKCJA:
ściany zewnetrzne: pustak ceramiczny Porotherm 25 cm, styropian 20 cm, tynk
strop: płyta żelbetowa
ścianka kolankowa: 106 cm
dach: czterospadowy, nachylenie 42 st , I 38 st , więźba drewniana, dachówka ceramiczna



CENA PROJEKTU:

5 850,00 zł

zamów na archon.pl
podyskutuj o projekcie Dom w wiciokrzewie
Dom w wiciokrzewie
PARTER 102,27 (102,86)
1. Wiatrołap 6,38
2. Hol 4,50
3. Spiżarnia 1,53
4. Kuchnia 11,23
5. Salon 29,42
6. Gabinet 11,59
7. Schody 2,49
8. Łazienka 3,38 (3,97)
9. Garaż 22,24
10. Kotłownia 9,51
Dom w wiciokrzewie
PODDASZE 80,94 (97,51)
1. Schody 1,66 (1,66)
2. Hol 6,72 (6,72)
3. Łazienka 11,34 (11,90)
4. Pokój {z garderobą} 21,47 (25,71)
5. Garderoba 2,25 (4,98)
6. Pokój {z garderobą} 15,36 (16,76)
7. Garderoba 2,11 (3,20)
8. Garderoba 2,97 (6,06)
9. Pokój {z garderobą} 17,06 (20,52)
White
White

Porozmawiaj o projekcie

comments powered by Disqus