White
White

Projekt domu ARCHON+ Dom w nektarynkach 4 (G2N)

więcej o projekcie Dom w nektarynkach 4 (G2N) na archon.pl »
Dom jednorodzinny z poddaszem użytkowym
garaż, strych, 5 pokoi, 1 kuchnia, 2 łazienki, spiżarka, kotłownia, pralnia, garderoby, kominek,
PARAMETRY TECHNICZNE
Powierzchnia domu
bez kotłowni, garażu, strychu
135,09 m2
Powierzchnia kotłowni 8,16 m2
Powierzchnia garażu 40,81 m2
Powierzchnia strychu 25,55 m2
Min. wymiary działki [i] 24,30x18,40 m
* po adaptacji [i] 23,30x18,40 m
Kubatura 989,91 m3
Powierzchnia zabudowy 157,69 m2
Powierzchnia użytkowa [i] 125,84 m2
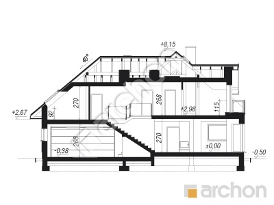
Wysokość 8,65 m
TECHNOLOGIA I KONSTRUKCJA:
ściany zewnetrzne: pustak ceramiczny Porotherm 25 cm, styropian 20 cm, tynk
strop: płyta żelbetowa
ścianka kolankowa: 115 cm
dach: czterospadowy, nachylenie 40 st , więźba drewniana, dachówka ceramiczna



CENA PROJEKTU:

5 850,00 zł

zamów na archon.pl
podyskutuj o projekcie Dom w nektarynkach 4 (G2N)
Dom w nektarynkach 4 (G2N)
PARTER 120,70 (122,82)
1. Wiatrołap 5,43
2. Hol 3,22
3. Spiżarnia 1,79
4. Kuchnia 8,81
5. Salon 31,49
6. Pokój 11,90
7. Łazienka 4,50
8. Pralnia 4,59
9. Kotłownia 8,16
10. Garaż 40,81 (42,93)
Dom w nektarynkach 4 (G2N)
PODDASZE 88,91 (120,46)
1. Schody 3,97
2. Korytarz 4,16
3. Korytarz 6,62
4. Łazienka 6,59 (9,62)
5. Pokój 12,63 (16,30)
6. Pokój 11,92 (12,55)
7. Garderoba 2,87 (5,70)
8. Pokój {z garderobą} 14,60 (17,63)
9. Strych 25,55 (43,91)
White
White

Porozmawiaj o projekcie

comments powered by Disqus