White
White

Projekt domu ARCHON+ Dom w orliczkach (G2P)

więcej o projekcie Dom w orliczkach (G2P) na archon.pl »
Dom jednorodzinny z poddaszem użytkowym
garaż, piwnica, strych, 5 pokoi, 1 kuchnia, 2 łazienki, spiżarka, kotłownia, pralnia, garderoby, pomieszczenie gospodarcze, kominek,
PARAMETRY TECHNICZNE
Powierzchnia domu
bez garażu, strychu, piwnic
145,54 m2
Powierzchnia garażu 41,36 m2
Powierzchnia piwnic 62,58 m2
Powierzchnia strychu 11,69 m2
Min. wymiary działki [i] 23,00x18,80 m
* po adaptacji [i] 21,00x18,80 m
Kubatura 1 190,31 m3
Powierzchnia zabudowy 151,69 m2
Powierzchnia użytkowa [i] 132,19 m2
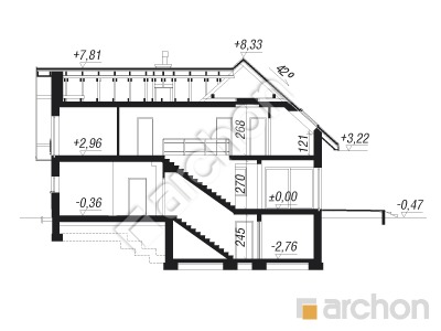
Wysokość 8,80 m
TECHNOLOGIA I KONSTRUKCJA:
ściany zewnetrzne: pustak ceramiczny Porotherm 25 cm, styropian 20 cm, tynk
strop: płyta żelbetowa
ścianka kolankowa: 121 cm
dach: dwuspadowy, nachylenie 42 st , więźba drewniana, dachówka ceramiczna



CENA PROJEKTU:

6 240,00 zł

zamów na archon.pl
podyskutuj o projekcie Dom w orliczkach (G2P)
Dom w orliczkach (G2P)
PIWNICA 62,58 (65,29)
1. Schody 3,63
2. Kotłownia 21,94
3. Spiżarnia 12,03
4. Pom. gospodarcze 10,56
5. Pom. gospodarcze 14,42 (17,13)
Dom w orliczkach (G2P)
PARTER 105,52
1. Wiatrołap 4,60
2. Hol 4,75
3. Łazienka 2,54
4. Spiżarnia 1,16
5. Kuchnia 14,59
6. Salon + Jadalnia 31,27
7. Pom. gospodarcze 5,25
8. Garaż 41,36
Dom w orliczkach (G2P)
PODDASZE 93,07 (118,58)
1. Schody 3,84
2. Hol 14,45
3. Pokój 12,72 (14,28)
4. Pokój 11,26 (13,58)
5. Garderoba 3,63 (5,01)
6. Pokój 10,54 (12,88)
7. Pokój 13,13 (14,82)
8. Strych 11,69 (19,95)
9. Łazienka 8,50 (12,79)
10. Pralnia 3,31 (6,98)
White
White

Porozmawiaj o projekcie

comments powered by Disqus