White
White

Projekt domu ARCHON+ Dom w kolendrze 2 (G)

więcej o projekcie Dom w kolendrze 2 (G) na archon.pl »
Dom jednorodzinny z poddaszem użytkowym
garaż, 4 pokoje, 1 kuchnia, 1 łazienka, WC, kotłownia, garderoby, kominek,
PARAMETRY TECHNICZNE
Powierzchnia domu
bez kotłowni, garażu
93,34 m2
Powierzchnia kotłowni 5,24 m2
Powierzchnia garażu 19,82 m2
Min. wymiary działki [i] 20,72x19,72 m
Kubatura 619,63 m3
Powierzchnia zabudowy 105,96 m2
Powierzchnia użytkowa [i] 90,84 m2
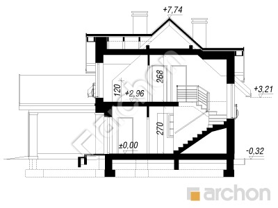
Wysokość 8,06 m
TECHNOLOGIA I KONSTRUKCJA:
ściany zewnetrzne: pustak ceramiczny Porotherm 25 cm, styropian 20 cm, tynk
strop: płyta żelbetowa
ścianka kolankowa: 120 cm
dach: dwuspadowy, nachylenie 42 st , I 22 st , więźba drewniana, dachówka ceramiczna



CENA PROJEKTU:

4 790,00 zł

zamów na archon.pl
podyskutuj o projekcie Dom w kolendrze 2 (G)
Dom w kolendrze 2 (G)
PARTER 72,08 (74,98)
1. Wiatrołap 4,03
2. Kotłownia 5,24
3. Kuchnia 12,67
4. Toaleta 1,66
5. Salon 25,12 (28,02)
6. Hol 3,54
7. Garaż 19,82
Dom w kolendrze 2 (G)
PODDASZE 46,32 (56,14)
1. Schody 4,75 (4,75)
2. Hol 4,56 (4,56)
3. Pokój 13,04 (16,22)
4. Garderoba 2,50 (3,70)
5. Pokój 8,72 (10,17)
6. Łazienka 5,78 (7,40)
7. Pokój 6,97 (9,34)
White
White

Porozmawiaj o projekcie

comments powered by Disqus