White
White

Projekt domu ARCHON+ Dom w kaliach 3 (G2P)

więcej o projekcie Dom w kaliach 3 (G2P) na archon.pl »
Dom jednorodzinny parterowy z poddaszem użytkowym
garaż, piwnica, strych, 5 pokoi, 1 kuchnia, 2 łazienki, spiżarka, kotłownia, pralnia, garderoby, pomieszczenie gospodarcze, kominek,
PARAMETRY TECHNICZNE
Powierzchnia domu
bez garażu, strychu, piwnic
194,12 m2
Powierzchnia garażu 34,93 m2
Powierzchnia piwnic 103,31 m2
Powierzchnia strychu 26,44 m2
Min. wymiary działki [i] 27,92x18,62 m
* po adaptacji [i] 26,32x18,62 m
Kubatura 1 554,45 m3
Powierzchnia zabudowy 198,66 m2
Powierzchnia użytkowa [i] 164,34 m2
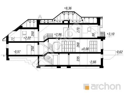
Wysokość 8,98 m
TECHNOLOGIA I KONSTRUKCJA:
ściany zewnetrzne: pustak ceramiczny Porotherm 25 cm, styropian 20 cm, tynk
strop: płyta żelbetowa
ścianka kolankowa: 99 cm
dach: czterospadowy, nachylenie 38 st , więźba drewniana, dachówka ceramiczna



CENA PROJEKTU:

7 230,00 zł

zamów na archon.pl
podyskutuj o projekcie Dom w kaliach 3 (G2P)
Dom w kaliach 3 (G2P)
PIWNICA 103,31 (106,49)
1. Hol 16,52 (19,70)
2. Schody 4,83
3. Kotłownia 14,91
4. Pom. gospodarcze 31,20
5. Pom. gospodarcze 23,88
6. Spiżarnia 11,97
Dom w kaliach 3 (G2P)
PARTER 144,94
1. Wiatrołap 8,67
2. Spiżarnia 1,76
3. Kuchnia 13,47
4. Salon + Jadalnia 44,15
5. Gabinet 14,77
6. Hol 3,66
7. Łazienka 6,93
8. Pralnia 4,32
9. Pom. gospodarcze 12,28
10. Garaż 34,93
Dom w kaliach 3 (G2P)
PODDASZE 110,55 (157,58)
1. Hol 8,18 (8,18)
2. Łazienka 6,57 (12,45)
3. Pokój {z garderobą} 12,72 (14,88)
4. Garderoba 4,21 (8,87)
5. Pokój 21,21 (26,54)
6. Pokój {z garderobą} 18,89 (20,56)
7. Garderoba 7,21 (12,42)
8. Strych 26,44 (48,56)
9. Schody 5,12 (5,12)
White
White

Porozmawiaj o projekcie

comments powered by Disqus