White
White

Projekt domu ARCHON+ Dom w tymianku 3 (P)

więcej o projekcie Dom w tymianku 3 (P) na archon.pl »
Dom jednorodzinny parterowy z poddaszem użytkowym
garaż, piwnica, 5 pokoi, 1 kuchnia, 3 łazienki, spiżarka, WC, kotłownia, pralnia, garderoby, pomieszczenie gospodarcze, kominek,
PARAMETRY TECHNICZNE
Powierzchnia domu
bez garażu, piwnic
160,70 m2
Powierzchnia garażu 19,66 m2
Powierzchnia piwnic 109,01 m2
Min. wymiary działki [i] 20,12x20,32 m
* po adaptacji [i] 19,12x20,32 m
Kubatura 1 241,58 m3
Powierzchnia zabudowy 141,20 m2
Powierzchnia użytkowa [i] 151,71 m2
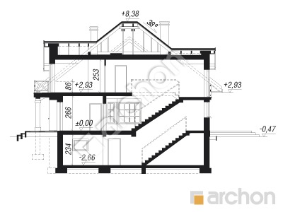
Wysokość 8,71 m
TECHNOLOGIA I KONSTRUKCJA:
ściany zewnetrzne: pustak ceramiczny Porotherm 25 cm, styropian 20 cm, tynk
strop: płyta żelbetowa
ścianka kolankowa: 86 cm
dach: czterospadowy, nachylenie 38 st , więźba drewniana, dachówka ceramiczna



CENA PROJEKTU:

6 240,00 zł

zamów na archon.pl
podyskutuj o projekcie Dom w tymianku 3 (P)
Dom w tymianku 3 (P)
PIWNICA 109,01 (111,22)
1. Korytarz 11,96 (14,17)
2. Kotłownia 17,52
3. Pralnia 20,09
4. Pom. gospodarcze 21,54
5. Pom. gospodarcze 34,93
6. Schody 2,97
Dom w tymianku 3 (P)
PARTER 102,59
1. Wiatrołap 6,15
2. Hol 8,04
3. Spiżarnia 1,58
4. Kuchnia 13,22
5. Salon + Jadalnia 34,93
6. Schowek 2,49
7. Pokój {z łazienką} 10,81
8. Toaleta 2,30
9. Łazienka 3,41
10. Garaż 19,66
Dom w tymianku 3 (P)
PODDASZE 77,77 (108,23)
1. Schody 6,68 (6,99)
2. Hol 7,09 (7,09)
3. Łazienka 7,13 (14,71)
4. Pokój {z garderobą} 12,78 (14,71)
5. Garderoba 3,54 (9,20)
6. Pokój 15,05 (20,62)
7. Garderoba 1,38 (2,79)
8. Pokój {z łazienką i garderobą} 19,97 (22,36)
9. Łazienka 4,15 (9,76)
White
White

Porozmawiaj o projekcie

comments powered by Disqus