White
White

Projekt domu ARCHON+ Dom w lantanach 2

więcej o projekcie Dom w lantanach 2 na archon.pl »
Dom jednorodzinny z poddaszem użytkowym
garaż, 4 pokoje, 1 kuchnia, 1 łazienka, WC, kotłownia, garderoby, pomieszczenie gospodarcze, kominek,
PARAMETRY TECHNICZNE
Powierzchnia domu
bez kotłowni, garażu
103,35 m2
Powierzchnia kotłowni 4,61 m2
Powierzchnia garażu 19,43 m2
Min. wymiary działki [i] 21,10x16,60 m
* po adaptacji [i] 20,30x16,60 m
Kubatura 633,70 m3
Powierzchnia zabudowy 99,16 m2
Powierzchnia użytkowa [i] 98,48 m2
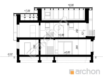
Wysokość 8,38 m
TECHNOLOGIA I KONSTRUKCJA:
ściany zewnetrzne: pustak ceramiczny Porotherm 25 cm, styropian 20 cm, tynk
strop: płyta żelbetowa
ścianka kolankowa: 121 cm
dach: dwuspadowy, nachylenie 42 st , więźba drewniana, dachówka ceramiczna



CENA PROJEKTU:

4 920,00 zł

zamów na archon.pl
podyskutuj o projekcie Dom w lantanach 2
Dom w lantanach 2
PARTER 69,28 (73,23)
1. Wiatrołap 4,45
2. Kuchnia 7,23
3. Salon + Jadalnia 28,63 (30,06)
4. Hol 3,58
5. Toaleta 1,35 (3,87)
6. Kotłownia 4,61
7. Garaż 19,43
Dom w lantanach 2
PODDASZE 58,11 (72,15)
1. Schody 6,38 (6,38)
2. Hol 6,14 (6,14)
3. Pom. gospodarcze 3,10 (4,15)
4. Pokój 11,82 (14,08)
5. Pokój 13,62 (15,29)
6. Łazienka 5,17 (6,77)
7. Pokój 10,11 (13,84)
8. Garderoba 1,77 (5,50)
White
White

Porozmawiaj o projekcie

comments powered by Disqus