White
White

Projekt domu ARCHON+ Dom w rododendronach 6 (G2)

więcej o projekcie Dom w rododendronach 6 (G2) na archon.pl »
Dom jednorodzinny parterowy z poddaszem użytkowym
garaż, 6 pokoi, 1 kuchnia, 2 łazienki, spiżarka, kotłownia, garderoby, pomieszczenie gospodarcze, kominek,
PARAMETRY TECHNICZNE
Powierzchnia domu
bez kotłowni, garażu
144,41 m2
Powierzchnia kotłowni 4,36 m2
Powierzchnia garażu 37,68 m2
Min. wymiary działki [i] 24,32x17,12 m
* po adaptacji [i] 22,42x17,12 m
Kubatura 883,84 m3
Powierzchnia zabudowy 136,99 m2
Powierzchnia użytkowa [i] 130,59 m2
Wysokość 8,58 m
TECHNOLOGIA I KONSTRUKCJA:
ściany zewnetrzne: pustak ceramiczny Porotherm 25 cm, styropian 20 cm, tynk
strop: płyta żelbetowa
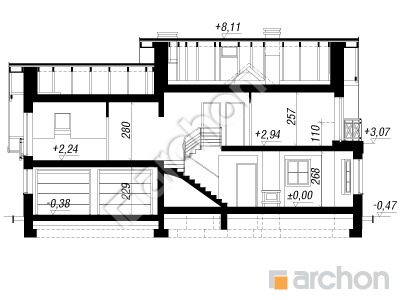
ścianka kolankowa: 110 cm
dach: dwuspadowy, nachylenie 40 st , więźba drewniana, dachówka ceramiczna



CENA PROJEKTU:

5 850,00 zł

zamów na archon.pl
podyskutuj o projekcie Dom w rododendronach 6 (G2)
Dom w rododendronach 6 (G2)
PARTER 106,77 (107,38)
1. Wiatrołap 3,19
2. Hol 2,22
3. Kuchnia 8,93
4. Spiżarnia 1,14
5. Salon 26,19
6. Pokój 10,83
7. Schody 4,73
8. Łazienka 3,72 (4,33)
9. Pom. gospodarcze 3,78
10. Garaż 37,68
11. Kotłownia 4,36
Dom w rododendronach 6 (G2)
PODDASZE 79,68 (99,93)
1. Hol 3,58 (3,58)
2. Łazienka 5,31 (7,58)
3. Pokój 13,48 (15,85)
4. Pokój 16,75 (19,00)
5. Pokój 10,01 (12,26)
6. Garderoba 5,44 (7,48)
7. Pokój {z garderobą} 18,68 (25,71)
8. Garderoba 3,46 (5,50)
9. Korytarz 2,97 (2,97)
White
White

Porozmawiaj o projekcie

comments powered by Disqus