White
White

Projekt domu ARCHON+ Dom w werbenach

więcej o projekcie Dom w werbenach na archon.pl »
Dom jednorodzinny parterowy z poddaszem użytkowym
garaż, 6 pokoi, 1 kuchnia, 2 łazienki, kotłownia, garderoby, kominek,
PARAMETRY TECHNICZNE
Powierzchnia domu
bez kotłowni, garażu
123,46 m2
Powierzchnia kotłowni 4,20 m2
Powierzchnia garażu 21,83 m2
Min. wymiary działki [i] 23,32x16,12 m
* po adaptacji [i] 21,52x16,12 m
Kubatura 724,11 m3
Powierzchnia zabudowy 116,26 m2
Powierzchnia użytkowa [i] 122,50 m2
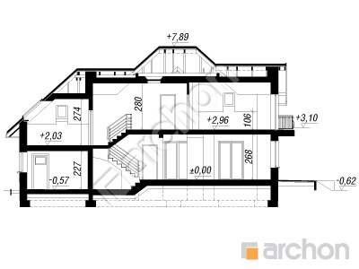
Wysokość 8,51 m
TECHNOLOGIA I KONSTRUKCJA:
ściany zewnetrzne: pustak ceramiczny Porotherm 25 cm, styropian 20 cm, tynk
strop: płyta żelbetowa
ścianka kolankowa: 106 cm
dach: czterospadowy, nachylenie 42 st , więźba drewniana, dachówka ceramiczna



CENA PROJEKTU:

5 100,00 zł

zamów na archon.pl
podyskutuj o projekcie Dom w werbenach
Dom w werbenach
PARTER 87,24 (88,18)
1. Wiatrołap 3,21
2. Hol 7,36
3. Salon + Jadalnia 25,67
4. Kuchnia 7,72
5. Łazienka 2,57
6. Kotłownia 4,20
7. Garaż 21,83
8. Korytarz 3,72 (4,66)
9. Schody 2,28
10. Pokój 8,68
Dom w werbenach
PODDASZE 62,25 (84,46)
1. Hol i schody 7,46 (7,46)
2. Pokój {z garderobą} 9,33 (11,17)
3. Pokój 10,56 (14,39)
4. Pokój 13,92 (17,72)
5. Łazienka 5,13 (8,94)
6. Pokój 14,89 (21,94)
7. Garderoba 0,96 (2,84)
White
White

Porozmawiaj o projekcie

comments powered by Disqus