White
White

Projekt domu ARCHON+ Dom w rododendronach 5

więcej o projekcie Dom w rododendronach 5 na archon.pl »
Dom jednorodzinny parterowy z poddaszem użytkowym
garaż, 6 pokoi, 1 kuchnia, 2 łazienki, spiżarka, kotłownia, garderoby, pomieszczenie gospodarcze, kominek,
PARAMETRY TECHNICZNE
Powierzchnia domu
bez kotłowni, garażu
144,27 m2
Powierzchnia kotłowni 4,74 m2
Powierzchnia garażu 18,78 m2
Min. wymiary działki [i] 21,42x18,22 m
* po adaptacji [i] 19,52x18,22 m
Kubatura 835,51 m3
Powierzchnia zabudowy 123,97 m2
Powierzchnia użytkowa [i] 133,00 m2
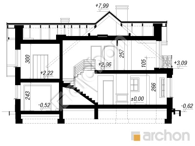
Wysokość 8,61 m
TECHNOLOGIA I KONSTRUKCJA:
ściany zewnetrzne: pustak ceramiczny Porotherm 25 cm, styropian 20 cm, tynk
strop: płyta żelbetowa
ścianka kolankowa: 105 cm
dach: dwuspadowy, nachylenie 40 st , więźba drewniana, dachówka ceramiczna



CENA PROJEKTU:

5 500,00 zł

zamów na archon.pl
podyskutuj o projekcie Dom w rododendronach 5
Dom w rododendronach 5
PARTER 95,29 (95,84)
1. Wiatrołap 3,69
2. Hol 3,14
3. Spiżarnia 1,35
4. Kuchnia 7,87
5. Salon 28,84
6. Pokój 13,91
7. Łazienka 3,48 (4,03)
8. Kotłownia 4,74
9. Garaż 18,78
10. Pom. gospodarcze 4,62
11. Schody 4,87
Dom w rododendronach 5
PODDASZE 72,50 (88,77)
1. Korytarz 4,69 (4,69)
2. Łazienka 7,81 (9,99)
3. Pokój 11,21 (14,11)
4. Pokój 18,04 (20,70)
5. Pokój 12,74 (15,71)
6. Pokój {z garderobą} 12,71 (15,49)
7. Garderoba 5,30 (8,08)
White
White

Porozmawiaj o projekcie

comments powered by Disqus