White
White

Projekt domu ARCHON+ Dom w rododendronach 5 (P)

więcej o projekcie Dom w rododendronach 5 (P) na archon.pl »
Dom jednorodzinny z poddaszem użytkowym
garaż, piwnica, 6 pokoi, 1 kuchnia, 2 łazienki, kotłownia, pralnia, garderoby, pomieszczenie gospodarcze, kominek,
PARAMETRY TECHNICZNE
Powierzchnia domu
bez garażu, piwnic
152,12 m2
Powierzchnia garażu 18,78 m2
Powierzchnia piwnic 68,68 m2
Min. wymiary działki [i] 21,42x18,22 m
* po adaptacji [i] 19,52x18,22 m
Kubatura 1 053,13 m3
Powierzchnia zabudowy 123,97 m2
Powierzchnia użytkowa [i] 142,29 m2
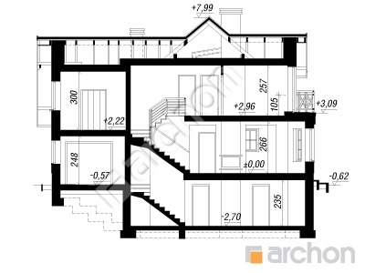
Wysokość 8,61 m
TECHNOLOGIA I KONSTRUKCJA:
ściany zewnetrzne: pustak ceramiczny Porotherm 25 cm, styropian 20 cm, tynk
strop: płyta żelbetowa
ścianka kolankowa: 105 cm
dach: dwuspadowy, nachylenie 40 st , więźba drewniana, dachówka ceramiczna



CENA PROJEKTU:

5 850,00 zł

zamów na archon.pl
podyskutuj o projekcie Dom w rododendronach 5 (P)
Dom w rododendronach 5 (P)
PIWNICA 68,68 (71,28)
1. Pom. gospodarcze 45,52 (48,12)
2. Kotłownia 9,24
3. Pralnia 13,92
Dom w rododendronach 5 (P)
PARTER 93,61
1. Wiatrołap 3,50
2. Hol 2,38
3. Kuchnia 10,20
4. Salon + Jadalnia 28,91
5. Pokój 13,92
6. Schody 4,87
7. Łazienka 6,62
8. Garaż 18,78
9. Pom. gospodarcze 4,43
Dom w rododendronach 5 (P)
PODDASZE 77,29 (93,27)
1. Hol i schody 9,24 (9,24)
2. Łazienka 7,77 (9,89)
3. Pokój 11,31 (14,21)
4. Pokój 17,98 (20,61)
5. Pokój 12,78 (15,75)
6. Pokój {z garderobą} 12,81 (15,49)
7. Garderoba 5,40 (8,08)
White
White

Porozmawiaj o projekcie

comments powered by Disqus