White
White

Projekt domu ARCHON+ Dom przy pasażu

więcej o projekcie Dom przy pasażu na archon.pl »
Budynek wielorodzinny piętrowy
spiżarka,
PARAMETRY TECHNICZNE
Kubatura 3 244,83 m3
Powierzchnia zabudowy 330,59 m2
Powierzchnia użytkowa [i] 709,19 m2
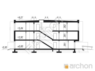
Wysokość 9,57 m
TECHNOLOGIA I KONSTRUKCJA:
ściany zewnetrzne: pustak ceramiczny Porotherm 25 cm, styropian 20 cm, tynk
strop: płyta żelbetowa
dach: płaski, nachylenie 0 st , papa termozgrzewalna
Budynek posiada łącznie 17 mieszkań: jedno trzypokojowe o powierzchni ok 60 m2, 5 mieszkań dwupokojowych o powierzchni ok 39 m2 oraz 11 mieszkań dwupokojowych o powierzchni ok 41 m2. Ponadto na parterze znajduje się dodatkowo pomieszczenie gospodarcze oraz pomieszczenie na rowery, wózki.



CENA PROJEKTU:

42 400,00 zł

zamów na archon.pl
podyskutuj o projekcie Dom przy pasażu
Dom przy pasażu
PARTER 257,07 (260,96)
1. Wiatrołap 3,31
2. Pom. gospodarcze 2,66
3. Korytarz 4,94
4. Pom. gospodarcze 4,95
5. Klatka schodowa 17,50 (21,39)
6. Mieszkanie 41,43
7. Mieszkanie 41,60
8. Mieszkanie 38,96
9. Mieszkanie 41,60
10. Mieszkanie 60,12
Dom przy pasażu
PIĘTRO 264,34
1. Klatka schodowa 21,39
2. Mieszkanie 38,96
3. Mieszkanie 41,21
4. Mieszkanie 41,38
5. Mieszkanie 38,81
6. Mieszkanie 41,38
7. Mieszkanie 41,21
Dom przy pasażu
PIĘTRO 2 263,46
1. Klatka schodowa 21,39
2. Mieszkanie 38,81
3. Mieszkanie 41,10
4. Mieszkanie 41,26
5. Mieszkanie 38,70
6. Mieszkanie 41,10
7. Mieszkanie 41,10
White
White

Porozmawiaj o projekcie

comments powered by Disqus