White
White

Projekt domu ARCHON+ Dom w budlejach 3 (A)

więcej o projekcie Dom w budlejach 3 (A) na archon.pl »
Dom jednorodzinny z poddaszem użytkowym
garaż, 6 pokoi, 1 kuchnia, 2 łazienki, spiżarka, kotłownia, garderoby, kominek,
PARAMETRY TECHNICZNE
Powierzchnia domu
bez kotłowni, garażu
165,89 m2
Powierzchnia kotłowni 6,03 m2
Powierzchnia garażu 18,94 m2
Min. wymiary działki [i] 21,20x19,00 m
* po adaptacji [i] 20,60x19,00 m
Kubatura 898,57 m3
Powierzchnia zabudowy 135,94 m2
Powierzchnia użytkowa [i] 155,42 m2
Wysokość 7,86 m
TECHNOLOGIA I KONSTRUKCJA:
ściany zewnetrzne: pustak ceramiczny Porotherm 25 cm, styropian 20 cm, tynk
strop: płyta żelbetowa
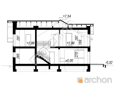
ścianka kolankowa: 169 cm
dach: dwuspadowy, nachylenie 30 st , więźba drewniana, dachówka ceramiczna



CENA PROJEKTU:

5 850,00 zł

zamów na archon.pl
podyskutuj o projekcie Dom w budlejach 3 (A)
Dom w budlejach 3 (A)
PARTER 98,41 (101,10)
1. Wiatrołap 6,97
2. Hol 9,85
3. Salon + Jadalnia 28,80
4. Kuchnia 12,27
5. Pokój 10,86
6. Spiżarnia 1,42 (4,11)
7. Kotłownia 6,03
8. Łazienka 3,27
9. Garaż 18,94
Dom w budlejach 3 (A)
PODDASZE 92,45 (101,47)
1. Hol i schody 13,56 (13,56)
2. Pokój 12,29 (13,10)
3. Pokój 18,24 (19,65)
4. Pokój 18,65 (20,06)
5. Garderoba 9,05 (9,86)
6. Pokój 12,75 (15,04)
7. Łazienka 7,91 (10,20)
White
White

Porozmawiaj o projekcie

comments powered by Disqus